売買長岡市関原町 売家 詳細

外観
角地で陽当たり◎広い庭と大きな家が魅力の3階建て住宅。
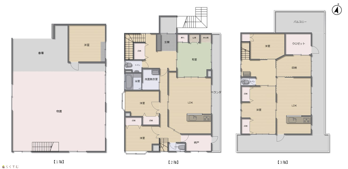
間取り
間取り図は現況を優先します。
その他の画像
2階LDKは明るく開放的!ベランダで風や陽光も楽しめます。
3口コンロのカウンターキッチンで、料理も家事も快適。
収納も便利な三面鏡洗面台で、すっきりした空間に。
窓が設けられた浴室で、換気も十分に行えます。
トイレは2階に2箇所、3階に1箇所完備。
2階LDKと隣接する和室は来客時や寛ぎスペースなどにも◎
2階洋室は南側に面しているので、たくさん採光も入ります。
2階洋室西側 クローゼット付きでお部屋もスッキリ片付きます。
2階納戸 収納力抜群の納戸で、家中すっきり片付けられます。
3階LDKで、プライベート感と開放感を両立。
家族と会話しながら使える、開放的なカウンターキッチン。
3階洋室南側 間仕切り可能な洋室。家族構成に合わせて使えます
広いバルコニーから長岡花火も楽しめる贅沢な住まい。
広い玄関でゆったり出入り。シューズボックスも備えています。
1階洋室は独立性のある快適空間で、趣味や在宅ワークにも対応。
駐車4台分のインナーガレージと物置付で車も荷物もすっきり収納
植栽のある広い庭で、ガーデニングや家庭菜園も楽しめます。
前面道路は北側6m公道、西側6m公道
物件詳細へ戻る
Copyright (C) 株式会社 コモンライフ・コーポレーション. All Rights Reserved.
不動産検索サイト「らくすむ」及び関連サイトに記載の不動産情報は、会員規約に則り、情報提供会社様の責任のもとに発信されております。
不動産の賃借、購入に関しては賃借者、購入者ご自身が情報を確認され、会社企業様から説明を受けられたうえで判断をお願いいたします。
不動産検索サイト「らくすむ」及び関連サイトに記載の不動産情報、写真、デザイン、コンテンツなどの無断転載・転用・複製など禁止します。