売買( 新築住宅)長岡市中島 詳細

外観
洗練されたスクエアフォルムが魅力です。駐車は3台可能。
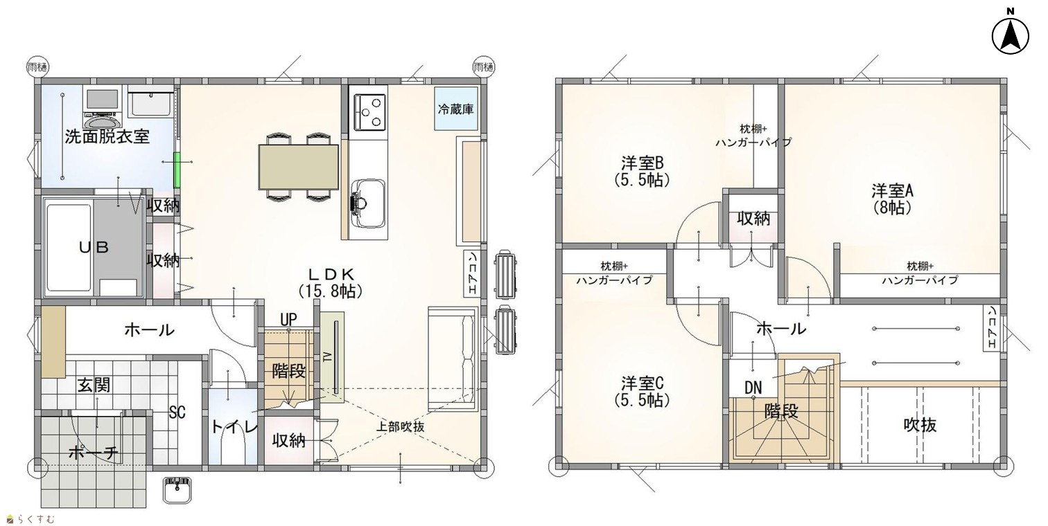
間取り
収納充実でスッキリ暮らせる間取り!物干し機付きで家事動線も◎
その他の画像
2026年4月完成予定!類似物件のご見学が可能です!
前面道路に消雪パイプ完備で冬季も安心です。
(参考写真) 吹抜けからは採光がたっぷり差し込みます♪
(参考写真) お掃除楽々なIHコンロ
(参考写真) タッチレス水栓
(参考写真) 三面鏡の裏やキャビネットにはたっぷり収納♪
(参考写真)  足を伸ばせる一坪風呂
(参考写真) 温水洗浄機能付きのトイレは各階に完備
(参考写真) ホスクリーン完備
(参考写真) 2階ホールにはエアコン付き
(参考写真) 大容量の下駄箱収納
高性能グラスウォール×発泡スチロールの「二重断熱」を採用
床下断熱を徹底的に!床暖房が無くても年中暖かく快適♪
高性能な天井断熱材で魔法瓶のようにポカポカに
サッシには内樹脂製の複層ガラスを採用し、省エネ効果を向上
パナソニック製の24時間熱交換換気扇を標準装備
物件詳細へ戻る
Copyright (C) 株式会社 コモンライフ・コーポレーション. All Rights Reserved.
不動産検索サイト「らくすむ」及び関連サイトに記載の不動産情報は、会員規約に則り、情報提供会社様の責任のもとに発信されております。
不動産の賃借、購入に関しては賃借者、購入者ご自身が情報を確認され、会社企業様から説明を受けられたうえで判断をお願いいたします。
不動産検索サイト「らくすむ」及び関連サイトに記載の不動産情報、写真、デザイン、コンテンツなどの無断転載・転用・複製など禁止します。