売買(新築住宅)長岡市宮内 第1 詳細

外観
(完成予想図)同施工会社様の類似物件へご案内します
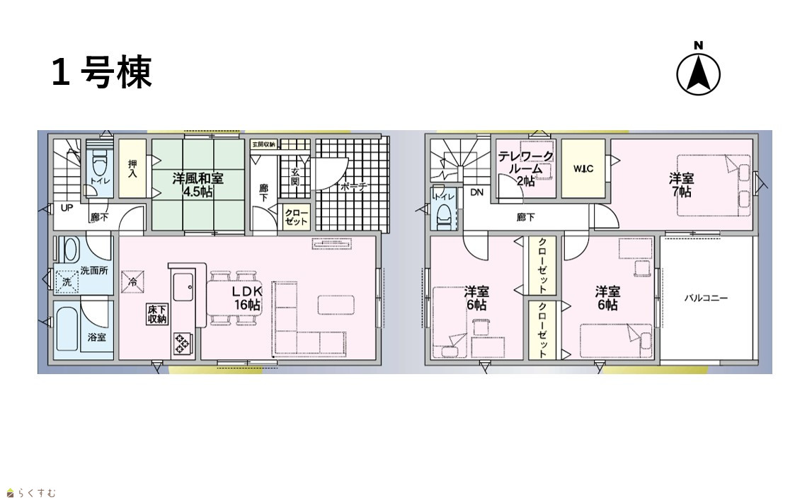
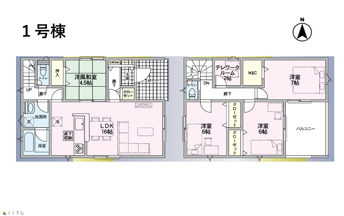
間取り
全居室収納付♪住み心地のいい大きさ。お問い合わせ下さい♪
その他の画像
区画図 駐車2台可能
※現地写真いれてください※
【ご購入者様特典のメンテナンス制度】
耐震装置【SAFE365】搭載
ベタ基礎工法採用 より丈夫な土台を築く為にこだわっています。
安心の土台づくり 地盤調査から生まれる、沈まない家。
(参考写真)フローリング 傷に強く、美しい仕上がり。
(参考写真)和室
(参考写真)キッチン収納
(参考写真)浄水器付き水栓
(参考写真)高断熱浴槽
(参考写真)浴室暖房乾燥機
(参考写真)洗面台 ミラー扉の内側はすべて収納スペース♪
(参考写真)温水洗浄機能付きトイレ
(参考写真)インナーバルコニーには物干し付
(参考写真)お財布にも環境にも優しい省エネ給湯器
(参考写真)モニターフォン 録画機能付き
(参考写真)宅配ボックス
(参考写真)電気自動車充電コンセント
物件詳細へ戻る
Copyright (C) 株式会社 コモンライフ・コーポレーション. All Rights Reserved.
不動産検索サイト「らくすむ」及び関連サイトに記載の不動産情報は、会員規約に則り、情報提供会社様の責任のもとに発信されております。
不動産の賃借、購入に関しては賃借者、購入者ご自身が情報を確認され、会社企業様から説明を受けられたうえで判断をお願いいたします。
不動産検索サイト「らくすむ」及び関連サイトに記載の不動産情報、写真、デザイン、コンテンツなどの無断転載・転用・複製など禁止します。