賃貸諏訪町3階建 詳細

外観
外観
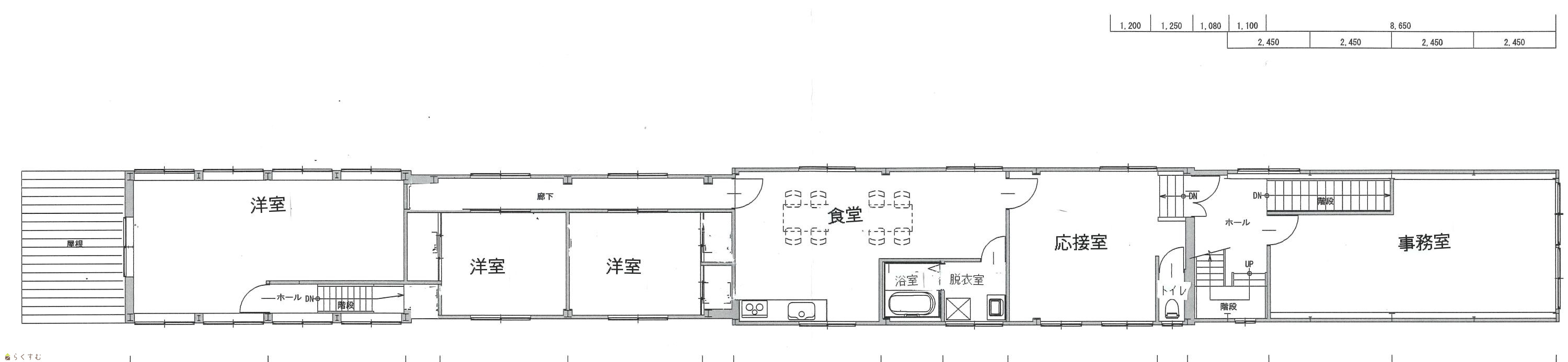
間取り
1階平面図
その他の画像
2階平面図
3階平面図
1階 倉庫・物置
1階 倉庫 クレーン有
2階事務所 ①
2階事務所 ②
2階事務所 ③
DK ①
DK ②
浴室
洗面脱衣
トイレ
ホール
居間 ①
居間 ②
居室 ①
居室 ②
居室 ③
洋室
地図画像
物件詳細へ戻る
Copyright (C) 株式会社 コモンライフ・コーポレーション. All Rights Reserved.
不動産検索サイト「らくすむ」及び関連サイトに記載の不動産情報は、会員規約に則り、情報提供会社様の責任のもとに発信されております。
不動産の賃借、購入に関しては賃借者、購入者ご自身が情報を確認され、会社企業様から説明を受けられたうえで判断をお願いいたします。
不動産検索サイト「らくすむ」及び関連サイトに記載の不動産情報、写真、デザイン、コンテンツなどの無断転載・転用・複製など禁止します。