賃貸M.MICASA 詳細

外観
外観
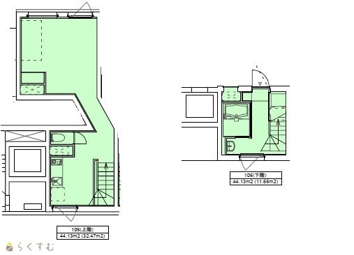
間取り
間取図
その他の画像
居室
居室
キッチン
キッチン
居室 その他部屋・スペース
洗面所
バス
トイレ
設備 セキュリティ
玄関
その他
エントランス ロビー
共用設備 敷地内/建物
共用設備
共用設備 セキュリティ
その他
周辺 上越モール
周辺 ナルス鴨島店
周辺 セブンイレブン上越東城店
物件詳細へ戻る
Copyright (C) 株式会社 コモンライフ・コーポレーション. All Rights Reserved.
不動産検索サイト「らくすむ」及び関連サイトに記載の不動産情報は、会員規約に則り、情報提供会社様の責任のもとに発信されております。
不動産の賃借、購入に関しては賃借者、購入者ご自身が情報を確認され、会社企業様から説明を受けられたうえで判断をお願いいたします。
不動産検索サイト「らくすむ」及び関連サイトに記載の不動産情報、写真、デザイン、コンテンツなどの無断転載・転用・複製など禁止します。