売買陽光台モデルハウス【ホリゾンタル】見学可 詳細

外観
伸びやかな水平ラインを強調した、心安らぐ安定感のある外観
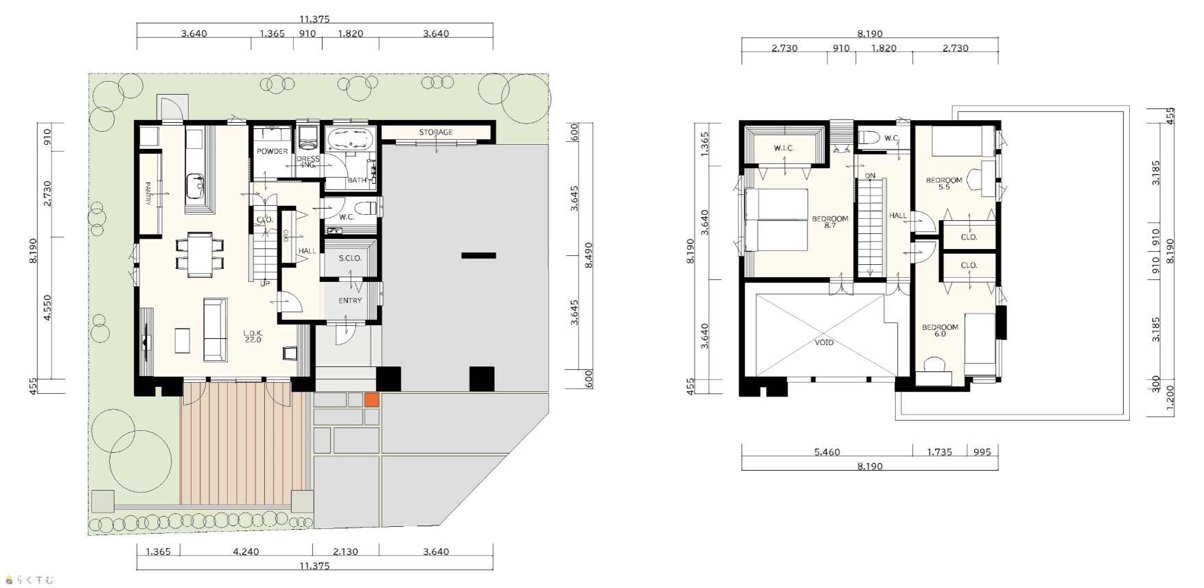
間取り
その他の画像
決して色褪せることのない、流行に左右されないデザイン
幻想的な光が美しさを引き立てる
外壁と同じタイルを玄関内にも採用
自然光をたっぷりと採り込み、明るく開放感に包まれるLDK
高さにメリハリをつけることで空間をより広く感じることが出来る
家族が顔を合わせやすいリビング階段
天井に無垢の木をあしらい、上質な雰囲気を楽しめる
リビングの壁は天然石を模したデザインウォール
落ち着いたコーディネートで色褪せることのない美しさを創出
見せる収納を楽しめる造作カウンター
非日常を感じることのできるホテルライクな洗面
光と影が織りなす美しさも計算に入れて設計
アクセントクロスが特徴的な2階トイレ
ダーク色でまとめ上げたシックな浴室
外との繋がりを感じることのできるウッドデッキ
視界が斜めに抜ける特徴的な窓
間接照明で主寝室に特別感を
インナーガレージ直結型の玄関
物件詳細へ戻る
Copyright (C) 株式会社 コモンライフ・コーポレーション. All Rights Reserved.
不動産検索サイト「らくすむ」及び関連サイトに記載の不動産情報は、会員規約に則り、情報提供会社様の責任のもとに発信されております。
不動産の賃借、購入に関しては賃借者、購入者ご自身が情報を確認され、会社企業様から説明を受けられたうえで判断をお願いいたします。
不動産検索サイト「らくすむ」及び関連サイトに記載の不動産情報、写真、デザイン、コンテンツなどの無断転載・転用・複製など禁止します。