売買曙2丁目 1棟売マンション 土地246坪 詳細

外観
外観
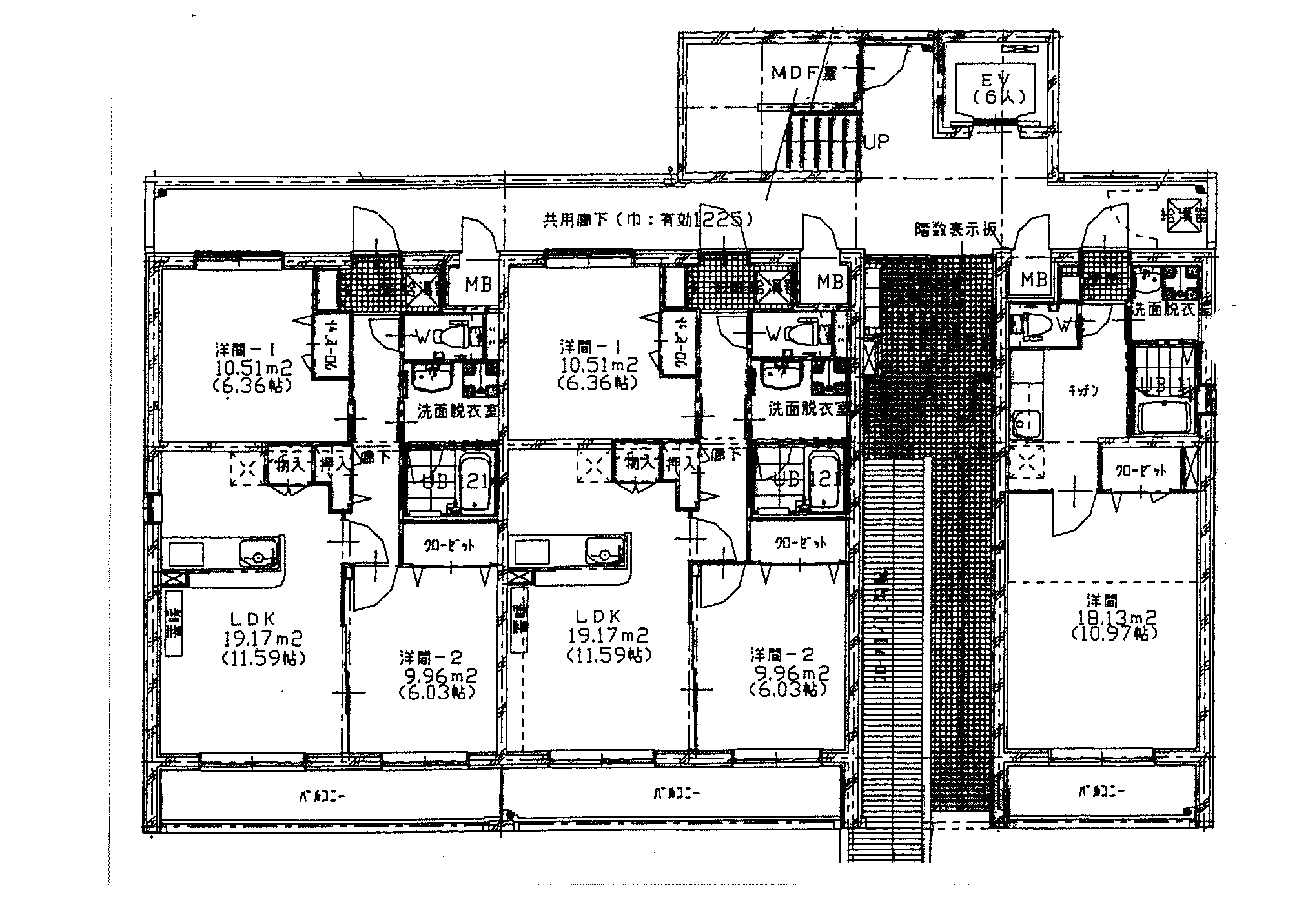
間取り
図面
その他の画像
キッチン
キッチン
トイレ
洗面
バスルーム
ダイニング
洋室
IHクッキングヒーター
流し
収納
洋室
収納
設備
バルコニー
廊下
エコキュート
エレベーター
物件詳細へ戻る
Copyright (C) 株式会社 コモンライフ・コーポレーション. All Rights Reserved.
不動産検索サイト「らくすむ」及び関連サイトに記載の不動産情報は、会員規約に則り、情報提供会社様の責任のもとに発信されております。
不動産の賃借、購入に関しては賃借者、購入者ご自身が情報を確認され、会社企業様から説明を受けられたうえで判断をお願いいたします。
不動産検索サイト「らくすむ」及び関連サイトに記載の不動産情報、写真、デザイン、コンテンツなどの無断転載・転用・複製など禁止します。