
売り事務所 詳細
お気に入り
追加済み
物件画像を詳しく見る

事務所・店舗向き物件です
物件概要
-
物件コード
00395-200003
-
物件名
売り事務所
-
交通
駅:信越線 犀潟駅から徒歩17分、バス:渋柿東から徒歩2分
-
所在地
新潟県上越市大潟区渋柿浜1853-3
物件へのルート表示
-
物件種別
中古一戸建て
-
構造
鉄骨
-
階建
地上1階建
-
建ぺい率/容積率
60%/200%
-
建物面積
166.54㎡
/50.37坪
-
土地面積
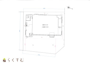
358.09㎡
/108.32坪
-
築年月
1998年10月(築27年)
-
入居時期
相談
-
用途地域
第1種住居地域
-
地目
宅地
-
都市計画
市街化区域
-
形状
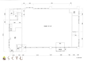
間口 19.30m × 奥行 18.23m
-
道路
県道 北側6.6m、市道 東側 車道8.7m歩道2.7m
-
私道
-
-
その他の制限
都市計画事業 3.4.102浜街道線
物件詳細情報
-
所在階/階数
-
-
号室
-
-
販売価格
14,000,000円
-
方位
-
-
間取り
3R、図面参照
-
専有面積
-
-
バルコニー面積
-
-
その他面積
-
-
駐車場
-
-
管理費
-
-
修繕積立金
-
-
現況
居住中
-
仲介手数料
なし
-
利用制限
-
-
学校区
大潟町小学校(1,364m)・大潟町中学校(2,458m)
-
設備
角地、ガスコンロ設置可能、トイレ2か所以上、エアコンあり、都市ガス、上水道、下水道、内装リフォーム済み、外装リフォーム済み、事業向け
-
取引態様
売主
-
情報登録日
2026/03/30
-
次回更新予定日
2026/04/16
-
取引条件有効期限
2026/06/30
備考
引渡し時期についてはご相談となります。
駐車場は普通車6台と軽自動車1台 駐車可能です。
北側県道は都市計画制限があります。
固定資産税、所有権移転費用、契約印紙代等が別途かかります。
平成30年 内装、外装リノベーション済み
(リフォーム必要箇所別途あり)
取扱い会社
株式会社ダイニチエンタープライズ
Copyright (C) 株式会社 コモンライフ・コーポレーション. All Rights Reserved.
不動産検索サイト「らくすむ」及び関連サイトに記載の不動産情報は、会員規約に則り、情報提供会社様の責任のもとに発信されております。
不動産の賃借、購入に関しては賃借者、購入者ご自身が情報を確認され、会社企業様から説明を受けられたうえで判断をお願いいたします。
不動産検索サイト「らくすむ」及び関連サイトに記載の不動産情報、写真、デザイン、コンテンツなどの無断転載・転用・複製など禁止します。