
秋葉区下興野町新築住宅 詳細
お気に入り
追加済み
物件画像を詳しく見る

◆当社売主のため仲介手数料不要!◆2026年1月完成予定◆駅や商業施設に近い分譲地内の物件です。
物件概要
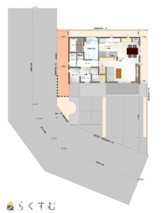
◆コンパクトでシンプルな間取り。◆キッチンから直接行ける洗面脱衣室で家事時短動線です。◆各居室に収納があり、2階の寝室には2帖のウォークインクローゼットが2室。どちらかを書斎として利用することも可能です。◆住宅設備は全てPanasonic製です。
-
物件コード
00371-200004
-
物件名
秋葉区下興野町新築住宅
-
交通
駅:信越線 新津駅から徒歩15分、バス:下興野から徒歩3分
-
所在地
新潟県新潟市秋葉区下興野町95-10
物件へのルート表示
-
物件種別
新築一戸建て
-
構造
木造
-
階建
地上2階建
-
建ぺい率/容積率
60%/200%
-
建物面積
91.91㎡
/27.8坪
-
土地面積
146.28㎡
/44.24坪
-
築年月
2026年1月完成予定
-
入居時期
2026年2月以降お引渡し可能
-
用途地域
第1種住居地域
-
地目
宅地
-
都市計画
市街化区域
-
形状
間口 10.1m × 奥行 15.4m
-
道路
南:市道下興野第2号線幅員6.5m、西:開発道路幅員6.0m
-
私道
-
-
その他の制限
-
物件詳細情報
-
所在階/階数
-
-
号室
-
-
販売価格
29,800,000円
-
方位
南
-
間取り
3LDK (洋室:6、5.2、5.2)、LDK15
-
専有面積
-
-
バルコニー面積
-
-
その他面積
-
-
駐車場
-
-
管理費
-
-
修繕積立金
-
-
現況
-
仲介手数料
なし
-
利用制限
-
-
学校区
新津第一小学校(1,653m)・新津第一中学校(1,942m)
-
設備
角地、整形地、前面道路6m以上、日当り良好、閑静な住宅街、スーパー近く、瑕疵担保保険付き、建物確認・完了検査済証あり、LDK15畳以上、全室フローリング、駐車場3台以上、南向き、TVインターホン、複層ガラス、システムキッチン、IHクッキングヒーター、追いだき機能付き、バス1坪以上、温水洗浄便座、シャワー付き洗面台、エアコン、24時間換気システム、省エネ給湯、高気密高断熱住宅、都市ガス、上水道、下水道、電気、ウォークインクローゼット、全居室収納あり、シューズインクローゼット、照明器具付き
-
取引態様
売主
-
情報登録日
2025/12/04
-
次回更新予定日
2025/12/29
-
取引条件有効期限
2026/03/31
備考
【建築確認番号】第R07-1205号
取扱い会社
株式会社 坂詰製材所
-
TEL
0258-86-4740
-
所在地
新潟県阿賀野市保田3858
-
交通
JR磐越西線「五泉駅」、バス停「安田新栄町団地」より徒歩約2分
-
営業時間
8:00~17:15/定休日:日・祝日 年末年始・夏季休暇
-
免許番号
新潟県知事(8)第3677号
-
所属団体名
公社 新潟県宅地建物取引協会 新発田支部
-
取引態様
売主
Copyright (C) 株式会社 コモンライフ・コーポレーション. All Rights Reserved.
不動産検索サイト「らくすむ」及び関連サイトに記載の不動産情報は、会員規約に則り、情報提供会社様の責任のもとに発信されております。
不動産の賃借、購入に関しては賃借者、購入者ご自身が情報を確認され、会社企業様から説明を受けられたうえで判断をお願いいたします。
不動産検索サイト「らくすむ」及び関連サイトに記載の不動産情報、写真、デザイン、コンテンツなどの無断転載・転用・複製など禁止します。