物件画像を詳しく見る

☆価格改定☆コンビニまで徒歩1分!200坪超の広い敷地で7DKのゆとりある和風住宅で田舎暮らしを満喫しませんか?
物件概要
広い敷地と広いお庭、作業所付の住宅です。内残存物撤去済み。是非一度内見にいらしてください!ご希望に応じてご購入後のリフォームの相談も可能です。
-
物件コード
00371-200002
-
物件名
柏崎市曽地中古住宅
-
交通
駅:越後線 荒浜駅から徒歩52分、バス:曽地から徒歩1分
-
所在地
新潟県柏崎市曽地977番地1
物件へのルート表示
-
物件種別
中古一戸建て
-
構造
木造
-
階建
地上2階建
-
建ぺい率/容積率
-
-
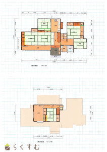
建物面積
160.82㎡
/48.64坪
-
土地面積
757.7㎡
/229.2坪
-
築年月
1980年8月(築45年)
-
入居時期
随時入居(引き渡し)可
-
用途地域
無指定
-
地目
宅地・田・畑
-
都市計画
都市計画区域外
-
形状
間口 15m × 奥行 33m
-
道路
南側国道8号
-
私道
-
-
その他の制限
-
物件詳細情報
-
所在階/階数
-
-
号室
-
-
販売価格
3,000,000円
-
方位
南
-
間取り
7DK
-
専有面積
-
-
バルコニー面積
-
-
その他面積
-
-
駐車場
-
-
管理費
-
-
修繕積立金
-
-
現況
空家
-
仲介手数料
330,000円
-
利用制限
-
-
学校区
中通小学校(263m)・瑞穂中学校(5,453m)
-
設備
日当り良好、駐車3台以上可能、南向き、トイレ2か所以上、都市ガス、上水道、下水道、2世帯向き、即引き渡し可能、田舎暮らし
-
取引態様
一般
-
情報登録日
2025/12/22
-
次回更新予定日
2026/04/17
-
取引条件有効期限
2026/03/31
備考
◆売買対象物件には、農地(田:125㎡※現況畑、畑:59㎡)及び、作業所(木造瓦・亜鉛メッキ鋼板葺2階建て、1階:33.08㎡、2階:16.56㎡、昭和10年建築※課税明細書より)が含まれます。
◆本物件は、登記上昭和55年新築となっておりますが、建物の一部に昭和39年新築の部分が含まれます。詳しくはお問い合わせください。
◆売主による境界の明示なし。
◆売主による契約不適合免責とさせていただきます。
◆現況有姿でのお引渡しとなります。
◆リノベーションのご相談も承ります。
◆長岡営業所でのお打ち合わせ可能です。
取扱い会社
株式会社 坂詰製材所
-
TEL
0258-86-4740
-
所在地
新潟県阿賀野市保田3858
-
交通
JR磐越西線「五泉駅」、バス停「安田新栄町団地」より徒歩約2分
-
営業時間
8:00~17:15/定休日:日・祝日 年末年始・夏季休暇
-
免許番号
新潟県知事(8)第3677号
-
所属団体名
公社 新潟県宅地建物取引協会 新発田支部
-
取引態様
一般