
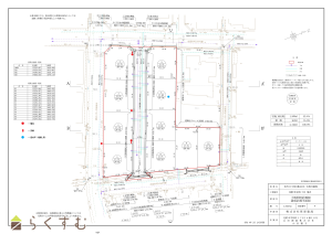
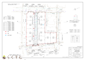
見附市本所一丁目分譲地 No.10 詳細
お気に入り
追加済み
物件画像を詳しく見る

住環境が整っており、住みやすく人の集まるエリア (JR見附駅・市役所・コンビニ・ドラッグストア・ホームセンター1km圏内)
物件概要
-
物件コード
00345-200008
-
物件名
見附市本所一丁目分譲地 No.10
-
交通
駅:信越線 見附駅から徒歩11分、バス:本所から徒歩5分
-
所在地
新潟県見附市本所一丁目501番16
物件へのルート表示
-
物件種別
売土地・分譲地
-
物件区分
売土地
-
構造
-
-
階建
-
-
建ぺい率/容積率
60%/200%
-
建物面積
-
-
土地面積
174.98㎡
/52.93坪
-
築年月
-
-
入居時期
随時入居(引き渡し)可
-
用途地域
第1種中高層住居専用地域
-
地目
宅地 (現状:宅地)
-
都市計画
市街化区域
-
形状
間口 10.06m × 奥行 16.90m
-
道路
東側接面道路 市道本所1の68号線(幅員約6m)
-
私道
-
-
その他の制限
-
物件詳細情報
-
所在階/階数
-
-
号室
-
-
販売価格
6,351,600円
-
方位
-
-
間取り
-
-
専有面積
-
-
バルコニー面積
-
-
その他面積
-
-
駐車場
-
-
管理費
-
-
修繕積立金
-
-
現況
-
仲介手数料
なし
-
利用制限
-
-
学校区
見附小学校(1,063m)・西中学校(1,228m)
-
設備
前道6m以上、更地、最寄り駅近く、建築条件なし、所有権、側溝、都市ガス(前面道路)、上水道(前面道路)、下水道(前面道路)、都市ガス(宅地内)、上水道(宅地内)、下水道(宅地内)、住宅向け
-
取引態様
売主
-
情報登録日
2024/06/26
-
次回更新予定日
2026/04/19
-
取引条件有効期限
2024/09/26
備考
建築条件なし 仲介手数料なし(売主のため)
取扱い会社
SH.LAB produced by 笹原建設
-
TEL
0258-94-5656
-
所在地
新潟県見附市美里町2番30号
-
交通
コミュニティバス停留所「ウェルネスタウン」
-
営業時間
9:00~16:00/定休日:土日祝、お盆、年末年始
-
免許番号
新潟県知事(11)第2696号
-
所属団体名
公社 新潟県宅地建物取引協会 三条支部
-
取引態様
売主
Copyright (C) 株式会社 コモンライフ・コーポレーション. All Rights Reserved.
不動産検索サイト「らくすむ」及び関連サイトに記載の不動産情報は、会員規約に則り、情報提供会社様の責任のもとに発信されております。
不動産の賃借、購入に関しては賃借者、購入者ご自身が情報を確認され、会社企業様から説明を受けられたうえで判断をお願いいたします。
不動産検索サイト「らくすむ」及び関連サイトに記載の不動産情報、写真、デザイン、コンテンツなどの無断転載・転用・複製など禁止します。