
小千谷市千谷売土地E 詳細
お気に入り
追加済み
物件画像を詳しく見る
物件概要
-
物件コード
00325-200023
-
物件名
小千谷市千谷売土地E
-
交通
駅:上越線 小千谷駅から徒歩37分、バス:千谷上口から徒歩4分
-
所在地
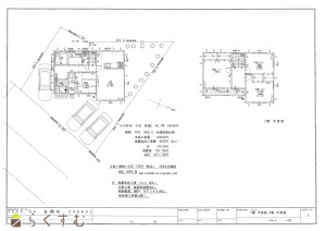
新潟県小千谷市千谷甲2116番1
物件へのルート表示
-
物件種別
売土地・分譲地
-
物件区分
売土地
-
構造
-
-
階建
-
-
建ぺい率/容積率
70%/200%
-
建物面積
-
-
土地面積
164.32㎡
/49.7坪
-
築年月
-
-
入居時期
随時入居(引き渡し)可
-
用途地域
無指定
-
地目
宅地 (現状:宅地)
-
都市計画
非線引き都市計画区域
-
形状
-
-
道路
前面道路幅員12m(消雪有)
-
私道
-
-
その他の制限
-
物件詳細情報
-
所在階/階数
-
-
号室
-
-
販売価格
5,500,000円
-
方位
-
-
間取り
-
-
専有面積
-
-
バルコニー面積
-
-
その他面積
-
-
駐車場
-
-
管理費
-
-
修繕積立金
-
-
現況
-
仲介手数料
247,500円
-
利用制限
-
-
学校区
千田小学校(849m)・千田中学校(958m)
-
設備
住宅向け
-
取引態様
一般
-
情報登録日
2025/07/04
-
次回更新予定日
2026/04/25
-
取引条件有効期限
2023/10/16
備考
分筆後引渡し(分筆測量費売主負担)
上下水道敷地内引込費用売主負担
取扱い会社
エイブルネットワーク長岡店(株式会社Will企画)
Copyright (C) 株式会社 コモンライフ・コーポレーション. All Rights Reserved.
不動産検索サイト「らくすむ」及び関連サイトに記載の不動産情報は、会員規約に則り、情報提供会社様の責任のもとに発信されております。
不動産の賃借、購入に関しては賃借者、購入者ご自身が情報を確認され、会社企業様から説明を受けられたうえで判断をお願いいたします。
不動産検索サイト「らくすむ」及び関連サイトに記載の不動産情報、写真、デザイン、コンテンツなどの無断転載・転用・複製など禁止します。