
【東坂之上】 中古マンション CASA東坂之上 101号 詳細
101号室
お気に入り
追加済み
物件画像を詳しく見る

♪長岡駅中心地まで徒歩5分♪ ゆったり5LDK+S
物件概要
-
物件コード
00322-200062
-
物件名
【東坂之上】 中古マンション CASA東坂之上 101号
-
交通
駅:上越新幹線 長岡駅から徒歩5分、バス:スズラン通りから徒歩2分
-
所在地
新潟県長岡市東坂之上町3丁目2-1
物件へのルート表示
-
物件種別
中古マンション
-
構造
鉄筋コン
-
階建
地上6階建
-
建ぺい率/容積率
80%/400%
-
建物面積
-
-
土地面積
-
-
築年月
1988年8月(築37年)
-
入居時期
相談
-
用途地域
商業地域
-
地目
宅地
-
都市計画
市街化区域
-
形状
-
-
道路
公道
-
私道
-
-
その他の制限
-
物件詳細情報
-
所在階/階数
1階/6階
-
号室
101号室
-
販売価格
5,500,000円
-
方位
北西
-
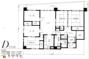
間取り
5LDK、5LDK+S(納戸)
-
専有面積
103.02㎡
/31.16坪
-
バルコニー面積
22.34㎡
/6.75坪
-
その他面積
-
-
駐車場
-
-
管理費
21000
-
修繕積立金
8500
-
現況
空家
-
仲介手数料
330,000円
-
利用制限
ペット:不可、楽器:不可
-
学校区
阪之上小学校(562m)・東中学校(1,214m)
-
設備
角部屋、最寄駅近く、洗濯機置き場、エレベーター、LDK15帖以上、和室あり、都市ガス、公営水道、下水道、シューズBOX
-
取引態様
一般
-
情報登録日
2025/11/21
-
次回更新予定日
2026/06/03
-
取引条件有効期限
2026/05/11
備考
※現況有姿渡し
取扱い会社
株式会社ミライ’s R Estate
Copyright (C) 株式会社 コモンライフ・コーポレーション. All Rights Reserved.
不動産検索サイト「らくすむ」及び関連サイトに記載の不動産情報は、会員規約に則り、情報提供会社様の責任のもとに発信されております。
不動産の賃借、購入に関しては賃借者、購入者ご自身が情報を確認され、会社企業様から説明を受けられたうえで判断をお願いいたします。
不動産検索サイト「らくすむ」及び関連サイトに記載の不動産情報、写真、デザイン、コンテンツなどの無断転載・転用・複製など禁止します。