
北城町3丁目 店舗 詳細
お気に入り
追加済み
物件画像を詳しく見る

上越大通りに面し、交通アクセス良好
物件概要
-
賃料
27.5万円/月
-
管理費
なし
-
敷/礼
3ヶ月/
なし
-
間取り
-
-
広さ
111㎡
/33.57坪
-
階建
地上1階建
-
築年数
2001年10月(築24年)
-
種別
店舗
-
住所
上越市北城町3丁目3-3
物件へのルート表示
-
交通
駅:妙高はねうまライン 高田駅から徒歩16分
-
物件コード
00308-100440
-
物件名
北城町3丁目 店舗
-
交通
駅:妙高はねうまライン 高田駅から徒歩16分
-
所在地
上越市北城町3丁目3-3
物件へのルート表示
-
物件種別
店舗
-
総戸数
-
-
構造
鉄骨
-
階建
地上1階建
-
所在階/階数
-
-
号室
-
-
専有面積
111㎡
/33.57坪
-
方位
-
-
間取り
-
-
賃料
27.5万円/月
25万+税
-
管理費
-
-
礼金
-
-
敷金
3ヶ月
-
共益費
-
-
ほか初期費用
-
-
その他諸費用
-
-
更新料
-
-
火災(家財)保険
要加入
-
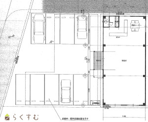
駐車場
15台
-
町内費
実費負担
-
バイク料金
-
-
鍵交換費
-
-
清掃料
-
-
更新事務手数料
-
-
保証区分
保証会社+緊急連絡先
-
保証会社
区分:加入要
保証会社名:CIZ
月額総賃料の77%(契約時) 事務手数料2,200円
-
家賃保証金
213,950円
-
連帯保証人
[区分]
不要
-
-
仲介手数料
275,000円
-
手数料負担割合
貸主:0%
借主:100%
-
手数料配分割合
元付:50%
客付:50%
-
築年月
2001年10月(築24年)
-
利用制限
法人:可、事務所利用:可
-
学校区
大町小学校(778m)・城北中学校(711m)
-
設備
1階、融雪設備あり、エアコン、駐車場あり
-
入居時期
相談
-
取引態様
仲介
-
情報登録日
2025/11/08
-
次回更新予定日
2025/12/30
備考
取扱い会社
上越宅地販売株式会社
-
TEL
025-522-3838
-
所在地
新潟県上越市南高田町1-2アサノビル1階
-
交通
妙高はねうまライン 南高田駅 徒歩1分
-
営業時間
9:00~18:30/定休日:毎週水曜日・GW・夏季・臨時休業(9/21日曜日)・年末年始
-
免許番号
新潟県知事(9)第3372号
-
所属団体名
公社 新潟県宅地建物取引協会 上越支部
-
取引態様
仲介
Copyright (C) 株式会社 コモンライフ・コーポレーション. All Rights Reserved.
不動産検索サイト「らくすむ」及び関連サイトに記載の不動産情報は、会員規約に則り、情報提供会社様の責任のもとに発信されております。
不動産の賃借、購入に関しては賃借者、購入者ご自身が情報を確認され、会社企業様から説明を受けられたうえで判断をお願いいたします。
不動産検索サイト「らくすむ」及び関連サイトに記載の不動産情報、写真、デザイン、コンテンツなどの無断転載・転用・複製など禁止します。