
大潟区潟町 詳細
お気に入り
追加済み
物件画像を詳しく見る

☆現在賃貸中のオーナーチェンジ物件です☆
物件概要
-
物件コード
00277-200241
-
物件名
大潟区潟町
-
交通
駅:信越線 潟町駅から徒歩4分
-
所在地
新潟県上越市大潟区潟町745-37
物件へのルート表示
-
物件種別
中古一戸建て
-
構造
木造
-
階建
地上1階建
-
建ぺい率/容積率
80%/200%
-
建物面積
368.9㎡
/111.59坪
-
土地面積
662.77㎡
/200.48坪
-
築年月
1973年4月(築53年)
-
入居時期
随時入居(引き渡し)可
-
用途地域
近隣商業地域
-
地目
宅地 (現状:宅地)
-
都市計画
市街化区域
-
形状
間口 18.4m
-
道路
北東側約9.1m
-
私道
-
-
その他の制限
-
物件詳細情報
-
所在階/階数
-
-
号室
-
-
販売価格
3,200,000円
-
方位
指定なし
-
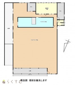
間取り
1R
-
専有面積
-
-
バルコニー面積
-
-
その他面積
-
-
駐車場
-
-
管理費
-
-
修繕積立金
-
-
現況
賃貸中
-
仲介手数料
なし
-
利用制限
-
-
学校区
大潟町小学校(1,447m)・大潟町中学校(363m)
-
設備
駐車2台可能、都市ガス、上水道、浄化槽、事業向け
-
取引態様
一般
-
情報登録日
2025/10/09
-
次回更新予定日
2026/04/17
-
取引条件有効期限
2035/12/31
備考
・賃料50000円/月で賃貸中です。
・倉庫、車庫として使用しています。
・推定表面利回りは約18.7%くらいになります。
※本体代金に別途仲介手数料・諸費用が掛かります。
取扱い会社
有限会社田村家具店
-
TEL
025-523-2438
-
所在地
新潟県上越市稲田4-5-21
-
交通
高田駅
-
営業時間
午前9:00~午後18:00/定休日:水曜日 第1、第3日曜日
-
免許番号
新潟県知事(10)第2792号
-
所属団体名
公社 新潟県宅地建物取引協会 上越支部
-
取引態様
一般
Copyright (C) 株式会社 コモンライフ・コーポレーション. All Rights Reserved.
不動産検索サイト「らくすむ」及び関連サイトに記載の不動産情報は、会員規約に則り、情報提供会社様の責任のもとに発信されております。
不動産の賃借、購入に関しては賃借者、購入者ご自身が情報を確認され、会社企業様から説明を受けられたうえで判断をお願いいたします。
不動産検索サイト「らくすむ」及び関連サイトに記載の不動産情報、写真、デザイン、コンテンツなどの無断転載・転用・複製など禁止します。