
西城町3丁目 中古住宅 詳細
お気に入り
追加済み
物件画像を詳しく見る

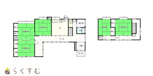
部屋数が多く広々とした間取りです!
物件概要
部屋数が多く広々とした間取りです!
-
物件コード
00269-200143
-
物件名
西城町3丁目 中古住宅
-
交通
駅:妙高はねうまライン 高田駅から徒歩14分
-
所在地
新潟県上越市西城町3丁目9番7号
物件へのルート表示
-
物件種別
中古一戸建て
-
構造
木造
-
階建
地上2階建
-
建ぺい率/容積率
60%/200%
-
建物面積
144.94㎡
/43.84坪
-
土地面積
234.98㎡
/71.08坪
-
築年月
1981年11月(築44年)
-
入居時期
随時入居(引き渡し)可
-
用途地域
第1種低層住居専用地域
-
地目
宅地 (現状:宅地)
-
都市計画
市街化区域
-
形状
-
-
道路
西 4m
-
私道
-
-
その他の制限
-
物件詳細情報
-
所在階/階数
-
-
号室
-
-
販売価格
7,800,000円
-
方位
-
-
間取り
5DK (和室:8畳、8畳、8畳、8畳、6畳)、DK
-
専有面積
-
-
バルコニー面積
-
-
その他面積
-
-
駐車場
-
-
管理費
-
-
修繕積立金
-
-
現況
空家
-
仲介手数料
330,000円
-
利用制限
-
-
学校区
大町小学校(207m)・城東中学校(1,180m)
-
設備
閑静な住宅街、エアコンあり、都市ガス、上水道、下水道、即引き渡し可能
-
取引態様
専任
-
情報登録日
2025/09/18
-
次回更新予定日
2026/06/12
-
取引条件有効期限
2025/12/31
備考
・南側の私道の持分あり(1/2)
・前面道路に消雪パイプあり
取扱い会社
株式会社カンエー・ハウジング
Copyright (C) 株式会社 コモンライフ・コーポレーション. All Rights Reserved.
不動産検索サイト「らくすむ」及び関連サイトに記載の不動産情報は、会員規約に則り、情報提供会社様の責任のもとに発信されております。
不動産の賃借、購入に関しては賃借者、購入者ご自身が情報を確認され、会社企業様から説明を受けられたうえで判断をお願いいたします。
不動産検索サイト「らくすむ」及び関連サイトに記載の不動産情報、写真、デザイン、コンテンツなどの無断転載・転用・複製など禁止します。