
横畑売家 詳細
お気に入り
追加済み
物件画像を詳しく見る
物件概要
-
物件コード
00259-200064
-
物件名
横畑売家
-
交通
駅:日本海ひすいライン 有間川駅から徒歩143分、バス:横畑から徒歩1分
-
所在地
新潟県上越市横畑689
物件へのルート表示
-
物件種別
中古一戸建て
-
構造
木造
-
階建
地上2階建
-
建ぺい率/容積率
70%/200%
-
建物面積
195.67㎡
/59.19坪
-
土地面積
743.19㎡
/224.81坪
-
築年月
不詳
-
入居時期
随時入居(引き渡し)可
-
用途地域
用途の指定のない地域
-
地目
宅地・田 (現状:宅地・田)
-
都市計画
市街化調整区域
-
形状
-
-
道路
北側
-
私道
-
-
その他の制限
-
物件詳細情報
-
所在階/階数
-
-
号室
-
-
販売価格
3,500,000円
-
方位
北
-
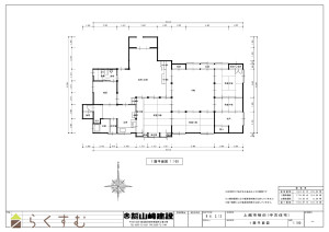
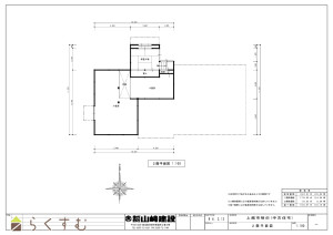
間取り
6DK (和室:4畳、6畳、8畳、9畳、10畳) (洋室:18)、DK7
-
専有面積
-
-
バルコニー面積
-
-
その他面積
-
-
駐車場
-
-
管理費
-
-
修繕積立金
-
-
現況
空家
-
仲介手数料
330,000円
-
利用制限
-
-
学校区
谷浜小学校(8,134m)・潮陵中学校(8,062m)
-
設備
田舎暮らし
-
取引態様
専任
-
情報登録日
2024/08/05
-
次回更新予定日
2026/01/05
-
取引条件有効期限
2024/07/22
備考
取扱い会社
株式会社山崎建設
-
TEL
0255-72-3129
-
所在地
新潟県妙高市東陽町2-20
-
交通
えちごトキめき鉄道 新井駅から徒歩25分
-
営業時間
8:00〜17:00/定休日:土日祝日
-
免許番号
新潟県知事(8)第3467号
-
所属団体名
公益社団法人新潟県宅地建物取引協会 上越支部
-
取引態様
専任
Copyright (C) 株式会社 コモンライフ・コーポレーション. All Rights Reserved.
不動産検索サイト「らくすむ」及び関連サイトに記載の不動産情報は、会員規約に則り、情報提供会社様の責任のもとに発信されております。
不動産の賃借、購入に関しては賃借者、購入者ご自身が情報を確認され、会社企業様から説明を受けられたうえで判断をお願いいたします。
不動産検索サイト「らくすむ」及び関連サイトに記載の不動産情報、写真、デザイン、コンテンツなどの無断転載・転用・複製など禁止します。