
大和3丁目貸家 詳細
お気に入り
追加済み
物件画像を詳しく見る

レトロな町家風の建物です
物件概要
-
賃料
4.5万円/月
-
管理費
なし
-
敷/礼
4.5万円/
なし
-
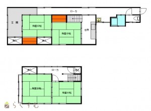
間取り
4K
-
広さ
93.36㎡
/28.24坪
-
階建
地上2階建
-
築年数
1961年3月(築65年)
-
種別
アパート・マンション・一戸建て
-
住所
新潟県上越市大和3丁目14-6
物件へのルート表示
-
交通
駅:妙高はねうまライン 南高田駅から徒歩15分、バス:南本町一丁目から徒歩3分
-
物件コード
00254-100039
-
物件名
大和3丁目貸家
-
交通
駅:妙高はねうまライン 南高田駅から徒歩15分、バス:南本町一丁目から徒歩3分
-
所在地
新潟県上越市大和3丁目14-6
物件へのルート表示
-
物件種別
アパート・マンション・一戸建て
-
総戸数
-
-
構造
木造
-
階建
地上2階建
-
所在階/階数
-
-
号室
-
-
専有面積
93.36㎡
/28.24坪
-
方位
指定なし
-
間取り
4K
-
賃料
4.5万円/月
-
管理費
-
-
礼金
-
-
敷金
4.5万円
-
共益費
-
-
ほか初期費用
-
-
その他諸費用
町内会費別途
-
更新料
-
-
火災(家財)保険
-
-
駐車場
駐車場(2台分)縦列
-
町内費
借主負担
-
バイク料金
-
-
鍵交換費
-
-
清掃料
-
-
更新事務手数料
-
-
保証区分
連帯保証人のみ
-
保証会社
区分:指定なし
-
-
連帯保証人
[区分]
要
-
-
仲介手数料
49,500円
-
手数料負担割合
貸主:-%
借主:-%
-
手数料配分割合
元付:-%
客付:-%
-
築年月
1961年3月(築65年)
-
利用制限
ペット:相談、楽器:不可、事務所利用:相談、ルームシェア:相談
-
学校区
大和小学校(690m)・城西中学校(887m)
-
設備
バストイレ別
-
入居時期
即入居可
-
取引態様
仲介
-
情報登録日
2024/04/01
-
次回更新予定日
2026/04/21
備考
トイレはリフォーム済み
取扱い会社
有限会社水野酒店不動産部
Copyright (C) 株式会社 コモンライフ・コーポレーション. All Rights Reserved.
不動産検索サイト「らくすむ」及び関連サイトに記載の不動産情報は、会員規約に則り、情報提供会社様の責任のもとに発信されております。
不動産の賃借、購入に関しては賃借者、購入者ご自身が情報を確認され、会社企業様から説明を受けられたうえで判断をお願いいたします。
不動産検索サイト「らくすむ」及び関連サイトに記載の不動産情報、写真、デザイン、コンテンツなどの無断転載・転用・複製など禁止します。