(完成予想図)同施工会社様の類似物件へご案内します
全居室収納付♪住み心地のいい大きさ。お問い合わせ下さい♪
現在工事中!同じ施工会社の完成物件をご案内いたします
ベタ基礎工法採用 より丈夫な土台を築く為にこだわっています。
安心の土台づくり 地盤調査から生まれる、沈まない家。
(参考写真)フローリング 傷に強く、美しい仕上がり。
(参考写真)洗面台 ミラー扉の内側はすべて収納スペース♪
物件画像を詳しく見る

【当日見学予約大歓迎】■今だけ補助金40万円対象 ■駐車4台可 ■宮内駅まで徒歩8分 ■前面道路消雪パイプ完備 ■明るくゆとりある南向きリビング18帖
物件概要
◆子育てエコホーム支援事業対象◆対象要件や予算に限りございますので詳細はお問い合わせください◆当日ご内覧大歓迎!豊富な知識と経験を基に丁寧にアドバイスします!
-
物件コード
00239-200584
-
物件名
(新築住宅)長岡市曲新町 第1 1号棟
-
交通
駅:信越線 宮内駅から徒歩8分、バス:宮内1丁目から徒歩3分
-
所在地
新潟県長岡市曲新町2丁目6-21付近
物件へのルート表示
-
物件種別
新築一戸建て
-
構造
木造
-
階建
地上2階建
-
建ぺい率/容積率
50%/100%
-
建物面積
98.82㎡
/29.89坪
-
土地面積
264.16㎡
/79.9坪
-
築年月
2025年11月完成予定
-
入居時期
2025年年11月中旬以降
-
用途地域
第1種低層住居専用地域
-
地目
宅地
-
都市計画
市街化区域
-
形状
間口 14.6m × 奥行 14.6m
-
道路
北側4.0m公道
-
私道
-
-
その他の制限
建築基準法22条指定区域
物件詳細情報
-
所在階/階数
-
-
号室
-
-
販売価格
28,800,000円
-
方位
南
-
間取り
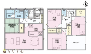
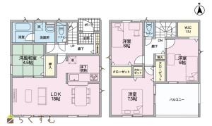
4LDK (和室:4.5畳) (洋室:7.5、6.0、6.0)、LDK18
-
専有面積
-
-
バルコニー面積
-
-
その他面積
-
-
駐車場
-
-
管理費
-
-
修繕積立金
-
-
現況
空家
-
仲介手数料
1,016,400円
-
利用制限
-
-
学校区
上組小学校(1,200m)・宮内中学校(1,100m)
-
設備
日当り良好、閑静な住宅街、耐震構造、LDK15畳以上、駐車場3台以上、南向き、TVインターホン、複層ガラス、ディンプルキー、システムキッチン、カウンターキッチン、浄水器、3口コンロ、ガスコンロ設置済み、追いだき機能付き、浴室暖房乾燥機、バス1坪以上、温水洗浄便座、シャワー付き洗面台、24時間換気システム、省エネ給湯、高気密高断熱住宅、都市ガス、上水道、下水道、電気、ウォークインクローゼット、全居室収納あり、床下収納、シューズBOX
-
取引態様
一般
-
情報登録日
2025/09/18
-
次回更新予定日
2025/10/26
-
取引条件有効期限
2025/12/31
備考
【教育】
上組小学校 約1200m 徒歩約15分
宮内中学校 約1100m 徒歩約14分
【交通】
JR信越本線/上越線 宮内駅 徒歩約8分
越後交通 宮内1丁目 徒歩約3分
◆弊社が選ばれている3つの理由
昨年は、142組のお客様が弊社を通じて新築住宅をご購入いただきました♪
1】新築中古の取扱数200件超!
◎たくさんの取扱物件からお探し条件にあう物件をご紹介
◎新着物件や価格改定物件もいち早くご提供
2】売って終わりにしない、充実のアフターサービス体制
◎アフターサービスの専門スタッフが、迅速・丁寧にご対応
◎独自のメンテナンス制度で設備の故障や建物の傷を無償修理
◎ご購入後のお困り事も、充実した体制で手厚くサポート
3】選べるプレゼント
◎エアコンや照明などの新生活に必要な設備を無料でプレゼント
取扱い会社
新潟土地建物販売センター 株式会社