
北条売り物件 詳細
お気に入り
追加済み
物件画像を詳しく見る

色々な用途に利用可能
物件概要
-
物件コード
00227-200068
-
物件名
北条売り物件
-
交通
駅:信越線 北条駅から徒歩3分、バス:北条駅から徒歩3分
-
所在地
新潟県柏崎市北条1260-1 他
物件へのルート表示
-
物件種別
中古一戸建て
-
構造
木造
-
階建
地上2階建
-
建ぺい率/容積率
-
-
建物面積
328.64㎡
/99.41坪
-
土地面積
819㎡
/247.74坪
-
築年月
1968年11月(築57年)
-
入居時期
随時入居(引き渡し)可
-
用途地域
用途の指定のない地域
-
地目
宅地・田 (現状:宅地)
-
都市計画
都市計画区域外
-
形状
-
-
道路
柏崎市道
-
私道
-
-
その他の制限
-
物件詳細情報
-
所在階/階数
-
-
号室
-
-
販売価格
3,000,000円
-
方位
南
-
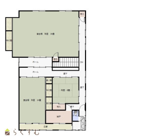
間取り
6DK、敷地内建物2棟 (①店舗・居宅 ②居宅)
-
専有面積
-
-
バルコニー面積
-
-
その他面積
-
-
駐車場
-
-
管理費
-
-
修繕積立金
-
-
現況
空家
-
仲介手数料
154,000円
-
利用制限
-
-
学校区
北条小学校(818m)・北条中学校(910m)
-
設備
駐車3台以上可能、システムキッチン、バス1坪以上、トイレ2か所以上、都市ガス、上水道、下水道、即引き渡し可能、別荘、田舎暮らし、事業向け
-
取引態様
一般
-
情報登録日
2024/01/10
-
次回更新予定日
2025/12/28
-
取引条件有効期限
2024/04/10
備考
敷地内に建物が2棟あります。
①店舗・居宅 延べ面積328.64㎡ 仕出し・宴会場、居宅として以前使用 S.43新築
②居宅 延べ面積110.12㎡ S.52新築
*建物内残物は売主において処分します。
取扱い会社
リメイク株式会社
Copyright (C) 株式会社 コモンライフ・コーポレーション. All Rights Reserved.
不動産検索サイト「らくすむ」及び関連サイトに記載の不動産情報は、会員規約に則り、情報提供会社様の責任のもとに発信されております。
不動産の賃借、購入に関しては賃借者、購入者ご自身が情報を確認され、会社企業様から説明を受けられたうえで判断をお願いいたします。
不動産検索サイト「らくすむ」及び関連サイトに記載の不動産情報、写真、デザイン、コンテンツなどの無断転載・転用・複製など禁止します。