
加茂市寿町 中古住宅 詳細
お気に入り
追加済み
物件画像を詳しく見る

JR加茂駅徒歩6分・バス停徒歩3分!2路線利用可能な立地♪
物件概要
-
物件コード
00221-200197
-
物件名
加茂市寿町 中古住宅
-
交通
駅:信越線 加茂駅から徒歩6分、バス:旭町から徒歩3分
-
所在地
新潟県加茂市寿町18-5
物件へのルート表示
-
物件種別
中古一戸建て
-
構造
木造
-
階建
地上2階建
-
建ぺい率/容積率
60%/200%
-
建物面積
98.19㎡
/29.7坪
-
土地面積
193.92㎡
/58.66坪
-
築年月
1969年10月(築56年)
-
入居時期
随時入居(引き渡し)可
-
用途地域
第1種住居地域
-
地目
宅地
-
都市計画
非線引き都市計画区域
-
形状
-
-
道路
-
-
私道
-
-
その他の制限
-
物件詳細情報
-
所在階/階数
-
-
号室
-
-
販売価格
2,000,000円
-
方位
南東
-
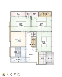
間取り
5K
-
専有面積
-
-
バルコニー面積
-
-
その他面積
-
-
駐車場
-
-
管理費
-
-
修繕積立金
-
-
現況
空家
-
仲介手数料
110,000円
-
利用制限
-
-
学校区
石川小学校(1,024m)・葵中学校(640m)
-
設備
日当り良好、閑静な住宅街、スーパー近く、都市ガス、上水道、下水道、即引き渡し可能
-
取引態様
専任
-
情報登録日
2026/03/09
-
次回更新予定日
2026/04/17
-
取引条件有効期限
2024/12/30
備考
取扱い会社
戸建エース / (株)アップデート不動産
Copyright (C) 株式会社 コモンライフ・コーポレーション. All Rights Reserved.
不動産検索サイト「らくすむ」及び関連サイトに記載の不動産情報は、会員規約に則り、情報提供会社様の責任のもとに発信されております。
不動産の賃借、購入に関しては賃借者、購入者ご自身が情報を確認され、会社企業様から説明を受けられたうえで判断をお願いいたします。
不動産検索サイト「らくすむ」及び関連サイトに記載の不動産情報、写真、デザイン、コンテンツなどの無断転載・転用・複製など禁止します。