
山吉ビル1F-B 詳細
お気に入り
追加済み
物件画像を詳しく見る

幹線道路(上越大通り)沿い、周辺には多くの商業施設や事業所が立ち並んでいます。
物件概要
-
賃料
33万円/月
-
管理費
なし
-
敷/礼
4ヶ月/
なし
-
間取り
-
-
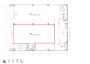
広さ
179.86㎡
/54.4坪
-
階建
地上2階建
-
築年数
1988年6月(築37年)
-
種別
店舗
-
住所
新潟県上越市藤巻8-59山吉ビル1階
物件へのルート表示
-
交通
駅:妙高はねうまライン 春日山駅から徒歩25分
賃料には共益費・駐車料(10台分)が含まれています。使用面積にご希望ありましたらご相談ください。
-
物件コード
00209-100140
-
物件名
山吉ビル1F-B
-
交通
駅:妙高はねうまライン 春日山駅から徒歩25分
-
所在地
新潟県上越市藤巻8-59山吉ビル1階
物件へのルート表示
-
物件種別
店舗
-
総戸数
-
-
構造
鉄骨
-
階建
地上2階建
-
所在階/階数
1階/2階
-
号室
-
-
専有面積
179.86㎡
/54.4坪
-
方位
-
-
間取り
-
-
賃料
33万円/月
共益費、駐車料(10台分)込み
-
管理費
-
-
礼金
-
-
敷金
4ヶ月
-
共益費
-
-
ほか初期費用
-
-
その他諸費用
-
-
更新料
-
-
火災(家財)保険
-
-
駐車場
-
-
町内費
実費負担
-
バイク料金
-
-
鍵交換費
-
-
清掃料
-
-
更新事務手数料
-
-
保証区分
保証会社のみ
-
保証会社
区分:加入要
保証会社名:その他
(CIZ)
-
-
家賃保証金
297,000円
別途事務手数料
-
連帯保証人
[区分]
不要
-
-
仲介手数料
330,000円
-
手数料負担割合
貸主:-%
借主:-%
-
手数料配分割合
元付:-%
客付:-%
-
築年月
1988年6月(築37年)
-
利用制限
-
-
学校区
高志小学校(805m)・春日中学校(1,988m)
-
設備
1階、融雪設備あり、エアコン、男女トイレ別、飲食店可、OAフロア、駐車場あり
-
入居時期
相談
-
取引態様
仲介
-
情報登録日
2025/12/04
-
次回更新予定日
2025/12/30
備考
間仕切壁設置工事後の引渡し(業種により要相談)
冬期間除雪費の負担あり
物件敷地内に別途駐車場あり(応相談)
取扱い会社
株式会社マルケー不動産
Copyright (C) 株式会社 コモンライフ・コーポレーション. All Rights Reserved.
不動産検索サイト「らくすむ」及び関連サイトに記載の不動産情報は、会員規約に則り、情報提供会社様の責任のもとに発信されております。
不動産の賃借、購入に関しては賃借者、購入者ご自身が情報を確認され、会社企業様から説明を受けられたうえで判断をお願いいたします。
不動産検索サイト「らくすむ」及び関連サイトに記載の不動産情報、写真、デザイン、コンテンツなどの無断転載・転用・複製など禁止します。