
五智4丁目貸家 詳細
お気に入り
追加済み
物件画像を詳しく見る

小学校徒歩約5分
物件概要
-
賃料
3.5万円/月
-
管理費
なし
-
敷/礼
2ヶ月/
なし
-
間取り
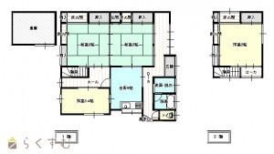
4K (和室:8畳、8畳) (洋室:5.4、8)、K6
-
広さ
78.5㎡
/23.74坪
-
階建
地上2階建
-
築年数
1969年4月(築57年)
-
種別
アパート・マンション・一戸建て
-
住所
新潟県上越市五智4丁目4-3
物件へのルート表示
-
交通
駅:妙高はねうまライン 直江津駅から徒歩18分
-
物件コード
00209-100021
-
物件名
五智4丁目貸家
-
交通
駅:妙高はねうまライン 直江津駅から徒歩18分
-
所在地
新潟県上越市五智4丁目4-3
物件へのルート表示
-
物件種別
アパート・マンション・一戸建て
-
総戸数
-
-
構造
木造
-
階建
地上2階建
-
所在階/階数
-
-
号室
-
-
専有面積
78.5㎡
/23.74坪
-
方位
指定なし
-
間取り
4K (和室:8畳、8畳) (洋室:5.4、8)、K6
-
賃料
3.5万円/月
-
管理費
-
-
礼金
-
-
敷金
2ヶ月
-
共益費
-
-
ほか初期費用
-
-
その他諸費用
-
-
更新料
-
-
火災(家財)保険
18,000円(2年分)
-
駐車場
-
-
町内費
実費負担
-
バイク料金
-
-
鍵交換費
-
-
清掃料
-
-
更新事務手数料
-
-
保証区分
-
-
保証会社
区分:加入要
保証料28,000円
-
連帯保証人
[区分]
指定なし
-
-
仲介手数料
38,500円
-
手数料負担割合
貸主:-%
借主:-%
-
手数料配分割合
元付:-%
客付:-%
-
築年月
1969年4月(築57年)
-
利用制限
-
-
学校区
国府小学校・直江津中学校
-
設備
バストイレ別、追いだき機能付き
-
入居時期
相談
-
取引態様
仲介
-
情報登録日
2022/02/05
-
次回更新予定日
2026/04/23
備考
駐車場別途契約
取扱い会社
株式会社マルケー不動産
Copyright (C) 株式会社 コモンライフ・コーポレーション. All Rights Reserved.
不動産検索サイト「らくすむ」及び関連サイトに記載の不動産情報は、会員規約に則り、情報提供会社様の責任のもとに発信されております。
不動産の賃借、購入に関しては賃借者、購入者ご自身が情報を確認され、会社企業様から説明を受けられたうえで判断をお願いいたします。
不動産検索サイト「らくすむ」及び関連サイトに記載の不動産情報、写真、デザイン、コンテンツなどの無断転載・転用・複製など禁止します。