インフォメーションカウンターのようにお使いいただけます♪
物件画像を詳しく見る

専有駐車場20台!山麓線沿いで目立つ立地のテナントです★
物件概要
-
賃料
66万円/月
-
管理費
55,000円/月
-
敷/礼
360万円/
なし
-
間取り
-
-
広さ
404.52㎡
/122.36坪
-
階建
地上2階建
-
築年数
1997年5月(築28年)
-
種別
事務所
-
住所
新潟県上越市大豆1丁目8番43号1F
物件へのルート表示
-
交通
駅:妙高はねうまライン 春日山駅から徒歩16分、バス:春日野一丁目から徒歩2分
広~くて設備の整ったテナント!様々な用途に使えそうです(^▽^)/
-
物件コード
00200-100310
-
物件名
【立地◎】春日山管財ビル 1F
-
交通
駅:妙高はねうまライン 春日山駅から徒歩16分、バス:春日野一丁目から徒歩2分
-
所在地
新潟県上越市大豆1丁目8番43号1F
物件へのルート表示
-
物件種別
事務所
-
総戸数
2戸
-
構造
鉄骨
-
階建
地上2階建
-
所在階/階数
1階/2階
-
号室
-
-
専有面積
404.52㎡
/122.36坪
-
方位
-
-
間取り
-
-
賃料
66万円/月
消費税込み
-
管理費
55,000円/月
消費税込み
-
礼金
-
-
敷金
360万円
賃料の 6ヶ月分
-
共益費
-
-
ほか初期費用
-
-
その他諸費用
賃料自動送金システム「スピードペイ」振込手数料として、毎月440円(税込)、利用更新料として1年毎に5,500円(税込)がかかります。
-
更新料
-
-
火災(家財)保険
-
-
駐車場
専有20台
-
町内費
-
-
バイク料金
-
-
鍵交換費
-
-
清掃料
-
-
保証審査事務手数料
2,200円
-
更新事務手数料
-
-
保証区分
保証会社+緊急連絡先
-
保証会社
区分:加入要
保証会社名:CIZ
ベーシックプラン(契約時のみの支払い、退去まで保証、保証更新料なし)
-
家賃保証金
550,550円
月額合計賃料の77%
-
連帯保証人
[区分]
不要
-
-
仲介手数料
660,000円
-
手数料負担割合
貸主:-%
借主:100%
-
手数料配分割合
元付:50%
客付:50%
-
築年月
1997年5月(築28年)
-
利用制限
法人:可、ペット:相談、事務所利用:可
-
学校区
春日小学校(534m)・春日中学校(584m)
-
設備
1階、オートロック、24時間セキュリティー、光ファイバー、エアコン、男女トイレ別、即引き渡し可、給湯、駐車場あり
-
入居時期
即入居可
-
取引態様
仲介
-
情報登録日
2025/07/14
-
次回更新予定日
2026/01/01
備考
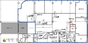
・間取り図の青色で囲ってあるエリアが専有部分になります。車寄せポーチから風除室、エントランスまでのエリアは共有スペースとなります。
・冬季間の駐車場内の除雪費用は、駐車台数で按分負担になります。
・専有駐車場が20台とお客様用駐車場(2Fと共用)があります。台数追加が必要な場合は、応相談とします。
・エアコンは2024年に入れ替え済みです。
・セコム設備あり。セキュリティ加入は任意ですが、借主負担となります。
・保証区分についての指定は無く、相談の上内容を決定します。
内覧やご不明点は、お気軽に025-520-8197(株)お不動さんまでお問い合わせください(^▽^)/
取扱い会社
株式会社 お不動さん
-
TEL
025-520-8197
-
所在地
上越市中央一丁目12番36号
-
交通
直江津駅
-
営業時間
8:30~17:30/定休日:日曜・祝日・第2土曜日・第4土曜日
-
免許番号
新潟県知事(2)第5449号
-
所属団体名
公社 新潟県宅地建物取引協会 上越支部
-
取引態様
仲介