
金町新築住宅 詳細
お気に入り
追加済み
物件画像を詳しく見る

栃尾支所、トチオ―レに近い3LDKの家。1階の内装はヒノキ無垢材を多用しています。
物件概要
日当たりが良く広々とした20帖のLDKをご体感ください。
-
物件コード
00189-200043
-
物件名
金町新築住宅
-
交通
駅:信越線 押切駅から徒歩152分、バス:栃尾車庫前から徒歩5分
-
所在地
新潟県長岡市金町1丁目4
物件へのルート表示
-
物件種別
新築一戸建て
-
構造
木造
-
階建
地上2階建
-
建ぺい率/容積率
60%/200%
-
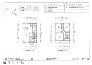
建物面積
110.16㎡
/33.32坪
-
土地面積
199.53㎡
/60.35坪
-
築年月
2024年11月(築1年)
-
入居時期
相談
-
用途地域
第2種住居地域
-
地目
宅地
-
都市計画
市街化区域
-
形状
間口 12m × 奥行 16.5m
-
道路
公道
-
私道
-
-
その他の制限
-
物件詳細情報
-
所在階/階数
-
-
号室
-
-
販売価格
28,000,000円
-
方位
南西
-
間取り
3LDK (洋室:8、6、6)、LDK20
-
専有面積
-
-
バルコニー面積
-
-
その他面積
-
-
駐車場
-
-
管理費
-
-
修繕積立金
-
-
現況
空家
-
仲介手数料
990,000円
-
利用制限
-
-
学校区
栃尾東小学校(568m)・刈谷田中学校(1,343m)
-
設備
角地、整形地、前面道路6m以上、日当り良好、閑静な住宅街、BELS/省エネ基準適合認定建物、LDK15畳以上、駐車場2台以上、TVインターホン、複層ガラス、ディンプルキー、システムキッチン、IHクッキングヒーター、食器洗浄乾燥機、3口コンロ、追いだき機能付き、浴室暖房乾燥機、バス1坪以上、温水洗浄便座、シャワー付き洗面台、エアコン、オール電化、省エネ給湯、上水道、下水道、電気、全居室収納あり、シューズインクローゼット、BS端子、照明器具付き、即引き渡し可能
-
取引態様
売主
-
情報登録日
2025/01/12
-
次回更新予定日
2025/12/29
-
取引条件有効期限
2025/03/31
備考
BELS/ZEHオリエンテッド取得物件です。
取扱い会社
村山ハウス(株)
Copyright (C) 株式会社 コモンライフ・コーポレーション. All Rights Reserved.
不動産検索サイト「らくすむ」及び関連サイトに記載の不動産情報は、会員規約に則り、情報提供会社様の責任のもとに発信されております。
不動産の賃借、購入に関しては賃借者、購入者ご自身が情報を確認され、会社企業様から説明を受けられたうえで判断をお願いいたします。
不動産検索サイト「らくすむ」及び関連サイトに記載の不動産情報、写真、デザイン、コンテンツなどの無断転載・転用・複製など禁止します。