
桜木町賃貸住宅 B棟 詳細
お気に入り
追加済み
物件画像を詳しく見る
物件概要
-
賃料
7.5万円/月
-
管理費
なし
-
敷/礼
1ヶ月/
なし
-
間取り
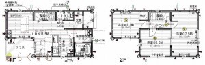
3LDK (洋室:7.5、5.5、5.2)、LDK13.5
-
広さ
67.28㎡
/20.35坪
-
階建
地上2階建
-
築年数
2017年12月(築8年)
-
種別
アパート・マンション・一戸建て
-
住所
新潟県柏崎市桜木町19番49-2
物件へのルート表示
-
交通
駅:越後線 東柏崎駅から徒歩14分、バス:桜木町から徒歩2分
-
物件コード
00178-100072
-
物件名
桜木町賃貸住宅 B棟
-
交通
駅:越後線 東柏崎駅から徒歩14分、バス:桜木町から徒歩2分
-
所在地
新潟県柏崎市桜木町19番49-2
物件へのルート表示
-
物件種別
アパート・マンション・一戸建て
-
総戸数
-
-
構造
木造
-
階建
地上2階建
-
所在階/階数
1階/2階
-
号室
-
-
専有面積
67.28㎡
/20.35坪
-
方位
南
-
間取り
3LDK (洋室:7.5、5.5、5.2)、LDK13.5
-
賃料
7.5万円/月
-
管理費
-
-
礼金
-
-
敷金
1ヶ月
-
共益費
-
-
ほか初期費用
-
-
その他諸費用
-
-
更新料
-
-
火災(家財)保険
19,000円(2年更新)
-
駐車場
敷地内2台込み
-
町内費
別途借主負担
-
バイク料金
-
-
鍵交換費
-
-
清掃料
-
-
更新事務手数料
-
-
保証区分
連帯保証人のみ
-
保証会社
区分:指定なし
-
-
連帯保証人
[区分]
要
-
-
仲介手数料
82,500円
-
手数料負担割合
貸主:-%
借主:-%
-
手数料配分割合
元付:-%
客付:-%
-
築年月
2017年12月(築8年)
-
利用制限
-
-
学校区
柏崎小学校(1,544m)・第一中学校(1,326m)
-
設備
築10年以内、駐車場2台無料、南向き、ダブルロックキー、システムキッチン、バストイレ別、追いだき機能付き、温水洗浄便座、洗面所独立、エアコン、都市ガス、TVモニター付きインターホン、即入居可、保証会社利用可能
-
入居時期
令和8年6月初旬
-
取引態様
仲介
-
情報登録日
2026/04/24
-
次回更新予定日
2026/05/08
備考
取扱い会社
株式会社オフィス・シナダ
-
TEL
0257-41-5077
-
所在地
新潟県柏崎市西港町4番19号
-
交通
柏崎駅
-
営業時間
10:00~18:00土日は10:00~17:00/定休日:水曜日・祝日
-
免許番号
新潟県知事(2)第5342号
-
所属団体名
公社 宅地建物取引協会 柏崎支部
-
取引態様
仲介
Copyright (C) 株式会社 コモンライフ・コーポレーション. All Rights Reserved.
不動産検索サイト「らくすむ」及び関連サイトに記載の不動産情報は、会員規約に則り、情報提供会社様の責任のもとに発信されております。
不動産の賃借、購入に関しては賃借者、購入者ご自身が情報を確認され、会社企業様から説明を受けられたうえで判断をお願いいたします。
不動産検索サイト「らくすむ」及び関連サイトに記載の不動産情報、写真、デザイン、コンテンツなどの無断転載・転用・複製など禁止します。