物件画像を詳しく見る

■周辺には公園、スーパーなど生活利便施設が充実! ■お車でのお出かけにも不便のない立地です! ■前面道路もゆとりがありストレスなく駐車ができます♪ ■シューズクロークがあるので玄関まわりもすっきりします。
物件概要
-
物件コード
00154-200726
-
物件名
長岡市今井2丁目
-
交通
駅:信越線 宮内駅から徒歩19分、バス:今宮橋から徒歩5分
-
所在地
新潟県長岡市今井2丁目187番2
物件へのルート表示
-
物件種別
新築一戸建て
-
構造
木造
-
階建
地上2階建
-
建ぺい率/容積率
50%/80%
-
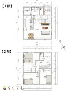
建物面積
91.08㎡
/27.55坪
-
土地面積
150.44㎡
/45.5坪
-
築年月
2023年12月(築1年)
-
入居時期
随時入居(引き渡し)可
-
用途地域
第1種低層住居専用地域
-
地目
宅地
-
都市計画
市街化区域
-
形状
間口 10.50m
-
道路
公道 北東 幅員6.0m
-
私道
-
-
その他の制限
法22条指定区域、景観法、水防法、土地再生特別措置法
物件詳細情報
-
所在階/階数
-
-
号室
-
-
販売価格
22,550,000円
-
方位
-
-
間取り
3LDK
-
専有面積
-
-
バルコニー面積
-
-
その他面積
-
-
駐車場
-
-
管理費
-
-
修繕積立金
-
-
現況
空家
-
仲介手数料
810,150円
-
利用制限
-
-
学校区
宮内小学校(1,300m)・宮内中学校(1,300m)
-
設備
前面道路6m以上、閑静な住宅街、スーパー近く、LDK15畳以上、駐車場2台以上、システムキッチン、IHクッキングヒーター、追いだき機能付き、バス1坪以上、温水洗浄便座、シャワー付き洗面台、オール電化、上水道、下水道、電気、シューズインクローゼット、即引き渡し可能
-
取引態様
一般
-
情報登録日
2025/09/26
-
次回更新予定日
2025/10/26
-
取引条件有効期限
2025/10/31
備考
建築確認番号 NK第23本01017号
キッチン以外のコンセントは全て3口コンセントです。
全居室にテレビコンセントが併設しています。
屋内で郵便を受取れる埋込式ポストを採用しています。
【その他費用】
消雪組合加入金:104,000円/一括
消雪組合年会費:5,000円/年
取扱い会社
ハーバーエステート株式会社