
沖田3丁目 中古戸建物件 詳細
お気に入り
追加済み
物件画像を詳しく見る

アクロスプラザ長岡・バイパス近く!5LDK+フリースペース、収納たっぷり!カーポート2台+敷地内に1~2台駐車可能、花壇あり
物件概要
居室以外にも物干しスペースや物置、わんちゃんのお部屋だったところはシューズクロークとしても使用可能
-
物件コード
00130-200016
-
物件名
沖田3丁目 中古戸建物件
-
交通
駅:信越線 長岡駅から徒歩20分、バス:職業安定所から徒歩1分
-
所在地
新潟県長岡市沖田3丁目41番地
物件へのルート表示
-
物件種別
中古一戸建て
-
構造
木造
-
階建
地上2階建
-
建ぺい率/容積率
60%/200%
-
建物面積
171.3㎡
/51.81坪
-
土地面積
378.45㎡
/114.48坪
-
築年月
2012年12月(築13年)
-
入居時期
随時入居(引き渡し)可
-
用途地域
第2種住居地域
-
地目
宅地 (現状:宅地)
-
都市計画
市街化区域
-
形状
間口 19m × 奥行 25m
-
道路
市道963号線 幅員8m
-
私道
-
-
その他の制限
長岡駅東地区計画、地区整備計画C地区
物件詳細情報
-
所在階/階数
-
-
号室
-
-
販売価格
32,600,000円
-
方位
南
-
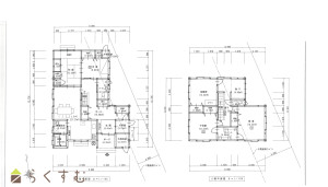
間取り
5LDK (和室:6.0畳) (洋室:9.6、8.5、9.6、12)、LDK18.0
-
専有面積
-
-
バルコニー面積
-
-
その他面積
4.96㎡
/1.5坪
クローゼット
-
駐車場
-
-
管理費
-
-
修繕積立金
-
-
現況
空家
-
仲介手数料
1,141,800円
-
利用制限
-
-
学校区
川崎小学校(943m)・東北中学校(1,167m)
-
設備
日当り良好、閑静な住宅街、スーパー近く、新築時図面あり、建物確認・完了検査済証あり、LDK15帖以上、築15年以内、駐車2台可能、駐車3台以上可能、南向き、TVインターホン、複層ガラス、システムキッチン、3口コンロ、ガスコンロ設置済み、バス1坪以上、温水洗浄便座、トイレ2か所以上、シャワー付き洗面台、エアコンあり、24時間換気システム、都市ガス、ウォークインクローゼット、全居室収納あり、シューズBOX、シューズインクローゼット、2世帯向き、即引き渡し可能、別荘、田舎暮らし、事業向け
-
取引態様
専任
-
情報登録日
2026/04/10
-
次回更新予定日
2026/04/24
-
取引条件有効期限
2026/07/10
備考
取扱い会社
株式会社 空間クリエイティブ
Copyright (C) 株式会社 コモンライフ・コーポレーション. All Rights Reserved.
不動産検索サイト「らくすむ」及び関連サイトに記載の不動産情報は、会員規約に則り、情報提供会社様の責任のもとに発信されております。
不動産の賃借、購入に関しては賃借者、購入者ご自身が情報を確認され、会社企業様から説明を受けられたうえで判断をお願いいたします。
不動産検索サイト「らくすむ」及び関連サイトに記載の不動産情報、写真、デザイン、コンテンツなどの無断転載・転用・複製など禁止します。