物件画像を詳しく見る

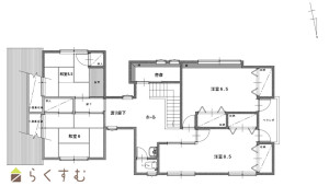
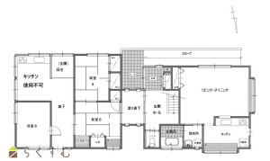
お買い物には車が必須の地域です。駐車場3台以上停められるスペースがあります☆ お住まいには7つのお部屋があり、ファミリーや2世帯も楽々過ごせます。
物件概要
お買い物には車が必須の地域です。駐車場3台以上停められるスペースがあります☆ お住まいには7つのお部屋があり、ファミリーや2世帯も楽々過ごせます。
-
物件コード
00125-200109
-
物件名
見附市下関町 中古住宅
-
交通
バス:今町6丁目から徒歩15分
-
所在地
新潟県見附市下関町丙2019番地
物件へのルート表示
-
物件種別
中古一戸建て
-
構造
木造
-
階建
地上2階建
-
建ぺい率/容積率
70%/200%
-
建物面積
192.94㎡
/58.36坪
-
土地面積
399㎡
/120.69坪
-
築年月
1971年5月(築55年)
-
入居時期
相談
-
用途地域
用途の指定のない地域
-
地目
宅地 (現状:宅地)
-
都市計画
市街化調整区域
-
形状
-
-
道路
北西:市道・消雪なし ※南側:赤道
-
私道
-
-
その他の制限
北西側道路:幅員3.3m(2項道路)のため再築時セットバック要
物件詳細情報
-
所在階/階数
-
-
号室
-
-
販売価格
5,000,000円
-
方位
北西
-
間取り
7LDK (和室:6.0畳、6.0畳、4.5畳、6.0畳) (洋室:6.0、6.5、8.5)、LD13.0 K3.0
-
専有面積
-
-
バルコニー面積
-
-
その他面積
-
-
駐車場
-
-
管理費
-
-
修繕積立金
-
-
現況
居住中
-
仲介手数料
330,000円
-
利用制限
-
-
学校区
今町小学校(898m)・今町中学校(1,693m)
-
設備
日当り良好、閑静な住宅街、駐車3台以上可能、南向き、トイレ2か所以上、上水道、下水道、田舎暮らし
-
取引態様
仲介
-
情報登録日
2026/02/19
-
次回更新予定日
2026/06/12
-
取引条件有効期限
2026/03/31
備考
*売主居住中のため内見は事前に連絡相談をお願いします
*建物面積:ベランダ含みません
*売主免責:契約不適合責任免責
*本物件(丙2019番)土地1筆と同敷地内に建築された複数棟の建物一式が売買対象です。
取扱い会社
株式会社フォレス・タカダ
-
TEL
0258-39-2919
-
所在地
新潟県長岡市摂田屋5-6-22
-
交通
信越線〔宮内駅〕徒歩13分
-
営業時間
8:30~17:30/定休日:隔週土曜・日曜日・祝/会社カレンダーによる
-
免許番号
新潟県知事(8)第3591号
-
所属団体名
新潟県宅地建物取引業協会 長岡支部
-
取引態様
仲介