お家の外壁は、落ち着きのあるブラウン色に仕上げました。
家事をスムーズにするために、家事動線を1直線にまとめました!
LIXILの対面型キッチンです。シンプルで使いやすいです。
LIXILのアライズです。1坪のエコベンチタイプです。
洗面室は3帖の広さがあり、サンルームとしてつかえます。
2階ホールは物干し金物があり洗濯物干し場になります。
物件画像を詳しく見る

【10/2価格改定しました】 徒歩1分の土手から長岡花火が見えます!アピタやイオンまで車で5分圏内!買い物に便利な立地です!大島小学校区です。前面道路は消雪パイプがあり冬場も安心!
物件概要
大島小学校まで徒歩7分、大島中学校まで徒歩15分、公園やこどもえんが徒歩10分!バス停徒歩5分!通学に便利な立地です。
-
物件コード
00101-200403
-
物件名
長岡市 大島新町1丁目新築分譲住宅
-
交通
駅:上越新幹線 長岡駅から徒歩35分、バス:長生橋西詰から徒歩5分
-
所在地
新潟県長岡市大島新町1丁目2046番1、2046番2
物件へのルート表示
-
物件種別
新築一戸建て
-
構造
木造
-
階建
地上1階建
-
建ぺい率/容積率
60%/200%
-
建物面積
87.77㎡
/26.55坪
-
土地面積
165.28㎡
/49.99坪
-
築年月
2025年3月(築9ヶ月)
-
入居時期
随時入居(引き渡し)可
-
用途地域
第1種中高層住居専用地域
-
地目
宅地 (現状:宅地)
-
都市計画
市街化区域
-
形状
間口 9.1m × 奥行 18.1m
-
道路
北側 市道 幅員5.7m 消雪パイプ有
-
私道
-
-
その他の制限
-
物件詳細情報
-
所在階/階数
-
-
号室
-
-
販売価格
24,900,000円
-
方位
北
-
間取り
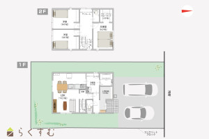
3LDK (洋室:6、6、6)、LDK14.5帖、洗面室3帖、土間収納2帖、WIC2帖
-
専有面積
-
-
バルコニー面積
-
-
その他面積
-
-
駐車場
-
-
管理費
-
-
修繕積立金
-
-
現況
指定なし
-
仲介手数料
なし
-
消雪組合加入金
200,000円
消雪組合費:10,000円/年
-
利用制限
-
-
学校区
大島小学校(500m)・大島中学校(1,200m)
-
設備
整形地、閑静な住宅街、BELS/省エネ基準適合認定建物、瑕疵担保保険付き、フラット35S適合、全室フローリング、駐車場2台以上、庭あり、TVインターホン、複層ガラス、ディンプルキー、システムキッチン、カウンターキッチン、IHクッキングヒーター、追いだき機能付き、バス1坪以上、温水洗浄便座、シャワー付き洗面台、エアコン、24時間換気システム、全室エアコン、オール電化、省エネ給湯、上水道、下水道、電気、ウォークインクローゼット、全居室収納あり、シューズインクローゼット、シューズBOX、照明器具付き
-
取引態様
売主
-
情報登録日
2025/12/12
-
次回更新予定日
2025/12/30
-
取引条件有効期限
2026/12/31
備考
↓ おすすめポイント ↓
安心のご契約!
~ニコニコ住宅の建物価格について~
表示価格には、
「土地」「建物」
「瑕疵担保責任保険」
「長期保証」「クリーニング費用」
「建物内の展示物撤収費用」
がきちんと含まれますのでご安心ください。
家事の時間を短縮できるよう、
家事楽にこだわった間取りです。
アウトドア用品や除雪道具も収納できる!
1坪の広々土間収納があります。
長岡の夏といったら、長岡花火!
長岡花火が、徒歩1分の土手から見れちゃいます!
通学や買い物に便利な立地です!
・リバーサイド千秋 車4分
・イオン長岡 車3分
・原信古正寺店 車3分
・大島小学校 徒歩7分
・大島中学校 徒歩15分
・大島公園 徒歩5分
・大島こどもえん 徒歩8分
LDKエアコン、カーテン、2階トイレ付です!
建売とは思えない!
手厚いアフターサービスが自慢の家
最長60年長期保証の家:
地盤・基礎・構造・雨漏りは基本保証20年
メンテナンス実施で最長60年
設備保証10年:
ユニットバス・システムキッチン・給湯設備・多機能便座
無料点検:10年間で4回実施
緊急駆けつけサービス:24時間365日10年間家事の時間を短縮できるよう、
家事楽にこだわった間取りです。
建築確認番号 第R06-1799号
取扱い会社
ダイエープロビス株式会社
-
TEL
0258-24-1110
-
所在地
新潟県長岡市宝4丁目2番地25
-
交通
「宝4丁目」バス停より徒歩2分
-
営業時間
8:30 ~ 17:30/定休日:土曜・日曜・祝日
-
免許番号
新潟県知事(13)1619号
-
所属団体名
新潟県宅地建物取引業協会 長岡支部
-
取引態様
売主