
柏崎市中浜2丁目売住宅 詳細
お気に入り
追加済み
物件画像を詳しく見る

人気の平家3ⅮK、駐車2台可能、別荘にも、港公園まで徒歩約3分
物件概要
-
物件コード
00088-200790
-
物件名
柏崎市中浜2丁目売住宅
-
交通
駅:信越線 柏崎駅から徒歩22分、バス:赤坂山陸橋前から徒歩2分
-
所在地
新潟県柏崎市中浜2丁目10-24
物件へのルート表示
-
物件種別
中古一戸建て
-
構造
木造
-
階建
地上2階建
-
建ぺい率/容積率
60%/200%
-
建物面積
73.5㎡
/22.23坪
-
土地面積
162.85㎡
/49.26坪
-
築年月
不詳
-
入居時期
相談
-
用途地域
第1種住居地域
-
地目
宅地
-
都市計画
非線引き都市計画区域
-
形状
-
-
道路
公道
-
私道
-
-
その他の制限
-
物件詳細情報
-
所在階/階数
-
-
号室
-
-
販売価格
5,000,000円
-
方位
北
-
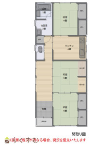
間取り
3DK (和室:6畳、6畳、6畳)、DK6
-
専有面積
-
-
バルコニー面積
-
-
その他面積
-
-
駐車場
-
-
管理費
-
-
修繕積立金
-
-
現況
空家
-
仲介手数料
330,000円
-
利用制限
-
-
学校区
大洲小学校(278m)・第三中学校(1,014m)
-
設備
閑静な住宅街、駐車2台可能、システムキッチン、3口コンロ、バス1坪以上、エアコンあり、都市ガス、上水道、下水道
-
取引態様
一般
-
情報登録日
2025/05/16
-
次回更新予定日
2025/12/30
-
取引条件有効期限
2025/08/15
備考
□平成10年建築
□建物は登記されておりません。
□建物保存登記をする場合は別途費用がかかります。
□現況有姿での売買となります。
□再建築の際には、東側のセットバックが必要になる場合があります。
取扱い会社
株式会社 ホーメックス
-
TEL
0257-24-0034
-
所在地
新潟県柏崎市土合628-1
-
交通
-
営業時間
8:30~17:30/定休日:土・日・祝(対応可能です) 年末年始・お盆・GW
-
免許番号
新潟県知事(9)第3199号
-
所属団体名
新潟県宅地建物取引業協会 柏崎支部
-
取引態様
一般
Copyright (C) 株式会社 コモンライフ・コーポレーション. All Rights Reserved.
不動産検索サイト「らくすむ」及び関連サイトに記載の不動産情報は、会員規約に則り、情報提供会社様の責任のもとに発信されております。
不動産の賃借、購入に関しては賃借者、購入者ご自身が情報を確認され、会社企業様から説明を受けられたうえで判断をお願いいたします。
不動産検索サイト「らくすむ」及び関連サイトに記載の不動産情報、写真、デザイン、コンテンツなどの無断転載・転用・複製など禁止します。