
三条市中野原売り住宅 詳細
お気に入り
追加済み
物件画像を詳しく見る

キャンプ場、温泉施設近く。有名アウトドアショップ近く
物件概要
高床住宅!敷地内に5台駐車可能!
-
物件コード
00085-200018
-
物件名
三条市中野原売り住宅
-
交通
駅:信越線 東三条駅から徒歩139分、バス:中野原(上)から徒歩2分
-
所在地
新潟県三条市中野原301番123
物件へのルート表示
-
物件種別
中古一戸建て
-
構造
木造鉄筋コン
-
階建
地上3階建
-
建ぺい率/容積率
70%/200%
-
建物面積
348.62㎡
/105.45坪
-
土地面積
936.79㎡
/283.37坪
-
築年月
1993年3月(築32年)
-
入居時期
相談
-
用途地域
無指定
-
地目
宅地 (現状:宅地)
-
都市計画
都市計画区域外
-
形状
間口 17.6m
-
道路
市道 やまなみ線
-
私道
-
-
その他の制限
-
物件詳細情報
-
所在階/階数
-
-
号室
-
-
販売価格
13,400,000円
-
方位
南西
-
間取り
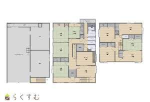
10DK (和室:8.0畳、8.0畳、4.5畳、7.5畳、7.5畳) (洋室:8.0、7.0、8.5、8.0、9.0)、DK8.75
-
専有面積
-
-
バルコニー面積
-
-
その他面積
-
-
駐車場
-
-
管理費
-
-
修繕積立金
-
-
現況
空家
-
仲介手数料
508,200円
-
利用制限
-
-
学校区
笹岡小学校(349m)・下田中学校(1,749m)
-
設備
日当り良好、駐車3台以上可能、南向き、IHクッキングヒーター、3口コンロ、追いだき機能付き、温水洗浄便座、トイレ2か所以上、エアコンあり、上水道、浄化槽、シューズBOX、内装リフォーム済み
-
取引態様
専任
-
情報登録日
2025/12/09
-
次回更新予定日
2026/01/01
-
取引条件有効期限
2025/11/26
備考
取扱い会社
柏越建設 株式会社
Copyright (C) 株式会社 コモンライフ・コーポレーション. All Rights Reserved.
不動産検索サイト「らくすむ」及び関連サイトに記載の不動産情報は、会員規約に則り、情報提供会社様の責任のもとに発信されております。
不動産の賃借、購入に関しては賃借者、購入者ご自身が情報を確認され、会社企業様から説明を受けられたうえで判断をお願いいたします。
不動産検索サイト「らくすむ」及び関連サイトに記載の不動産情報、写真、デザイン、コンテンツなどの無断転載・転用・複製など禁止します。