
レクセル長岡 詳細
607号室
お気に入り
追加済み
物件画像を詳しく見る

長岡駅徒歩圏内、コンビニすぐそばの生活に便利な立地です。バス・トイレ別室、エアコン1台付。
物件概要
-
賃料
4.8万円/月
-
管理費
なし
-
敷/礼
1ヶ月/
1ヶ月
-
間取り
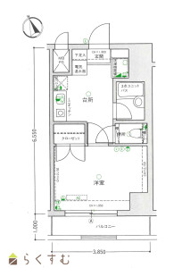
1K (洋室:6)
-
広さ
25.21㎡
/7.62坪
-
階建
地上12階建
-
築年数
1993年4月(築32年)
-
種別
アパート・マンション・一戸建て
-
住所
新潟県長岡市本町2丁目2-16
物件へのルート表示
-
交通
駅:長岡駅から徒歩8分
二重サッシ!温水洗浄暖房便座・録画付きカメラインターホン設置します!
-
物件コード
00071-100395
-
物件名
レクセル長岡
-
交通
駅:長岡駅から徒歩8分
-
所在地
新潟県長岡市本町2丁目2-16
物件へのルート表示
-
物件種別
アパート・マンション・一戸建て
-
総戸数
-
-
構造
鉄骨鉄筋コン
-
階建
地上12階建
-
所在階/階数
6階/12階
-
号室
607号室
-
専有面積
25.21㎡
/7.62坪
-
方位
南
-
間取り
1K (洋室:6)
-
賃料
4.8万円/月
-
管理費
-
-
礼金
1ヶ月
-
敷金
1ヶ月
-
共益費
-
-
ほか初期費用
-
-
その他諸費用
-
-
更新料
-
-
火災(家財)保険
15,000円
2年間
-
駐車場
-
-
町内費
-
-
バイク料金
-
-
鍵交換費
-
-
清掃料
-
-
更新事務手数料
-
-
保証区分
連帯保証人のみ
-
保証会社
区分:指定なし
-
-
連帯保証人
[区分]
要
-
-
仲介手数料
52,800円
-
手数料負担割合
貸主:-%
借主:100%
-
手数料配分割合
元付:50%
客付:50%
-
築年月
1993年4月(築32年)
-
利用制限
ペット:不可、楽器:不可、事務所利用:不可
-
学校区
表町小学校(472m)・東中学校(1,098m)
-
設備
バス停近く、外壁タイル張り、エレベーター、敷地内ゴミ置き場、駐輪場あり、バイク置き場、管理人常駐、IHクッキングヒーター、バストイレ別、温水洗浄便座、エアコン、オール電化、バルコニー、複層サッシ、クロゼット、BS端子・アンテナ、各居室照明、即入居可
-
入居時期
即入居可
-
取引態様
仲介
-
情報登録日
2025/04/03
-
次回更新予定日
2025/12/28
備考
取扱い会社
有限会社 グリーン土地
Copyright (C) 株式会社 コモンライフ・コーポレーション. All Rights Reserved.
不動産検索サイト「らくすむ」及び関連サイトに記載の不動産情報は、会員規約に則り、情報提供会社様の責任のもとに発信されております。
不動産の賃借、購入に関しては賃借者、購入者ご自身が情報を確認され、会社企業様から説明を受けられたうえで判断をお願いいたします。
不動産検索サイト「らくすむ」及び関連サイトに記載の不動産情報、写真、デザイン、コンテンツなどの無断転載・転用・複製など禁止します。