
出雲崎町船橋中古住宅 詳細
お気に入り
追加済み
物件画像を詳しく見る

キッチン、トイレ2か所、車庫2棟あり。保育園近くの物件!
物件概要
-
物件コード
00063-200094
-
物件名
出雲崎町船橋中古住宅
-
交通
駅:越後線 小木ノ城駅から徒歩5分、バス:出雲崎駅前から徒歩33分
-
所在地
新潟県三島郡出雲崎町船橋18
物件へのルート表示
-
物件種別
中古一戸建て
-
構造
木造
-
階建
地上2階建
-
建ぺい率/容積率
-
-
建物面積
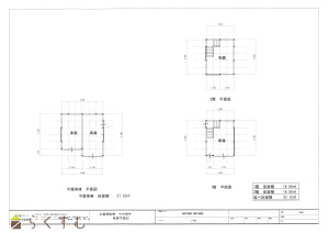
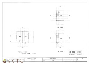
165.77㎡
/50.14坪
-
土地面積
396.69㎡
/119.99坪
-
築年月
1983年9月(築42年)
-
入居時期
相談
-
用途地域
用途の指定のない地域
-
地目
宅地
-
都市計画
都市計画区域外
-
形状
間口 22m
-
道路
南側:町道
-
私道
-
-
その他の制限
-
物件詳細情報
-
所在階/階数
-
-
号室
-
-
販売価格
5,500,000円
-
方位
-
-
間取り
7K (和室:8畳、6畳、4.5畳、10畳、6畳) (洋室:6、6)
-
専有面積
-
-
バルコニー面積
-
-
その他面積
-
-
駐車場
-
-
管理費
-
-
修繕積立金
-
-
現況
空家
-
仲介手数料
330,000円
-
利用制限
-
-
学校区
出雲崎小学校(2,207m)・出雲崎中学校(2,413m)
-
設備
日当り良好、閑静な住宅街、駐車2台可能、追いだき機能付き、トイレ2か所以上、LPG、上水道、下水道、別荘、田舎暮らし
-
取引態様
一般
-
情報登録日
2025/04/24
-
次回更新予定日
2025/12/27
-
取引条件有効期限
2025/07/31
備考
・未登記建物(車庫)
・車庫2棟あり
・トイレ2か所あり、ミニキッチン、洗面
・現況有姿取引となります。
取扱い会社
株式会社 山六木材
Copyright (C) 株式会社 コモンライフ・コーポレーション. All Rights Reserved.
不動産検索サイト「らくすむ」及び関連サイトに記載の不動産情報は、会員規約に則り、情報提供会社様の責任のもとに発信されております。
不動産の賃借、購入に関しては賃借者、購入者ご自身が情報を確認され、会社企業様から説明を受けられたうえで判断をお願いいたします。
不動産検索サイト「らくすむ」及び関連サイトに記載の不動産情報、写真、デザイン、コンテンツなどの無断転載・転用・複製など禁止します。