
◆中古戸建◆三条市荒町一丁目 詳細
お気に入り
追加済み
物件画像を詳しく見る

車庫付き(軽自動車専用)!上下水道!都市ガス引込有!
物件概要
2026年3月18日300万円→250万円に
-
物件コード
00052-200199
-
物件名
◆中古戸建◆三条市荒町一丁目
-
交通
駅:弥彦線 北三条駅から徒歩11分、バス:荒町1丁目から徒歩1分
-
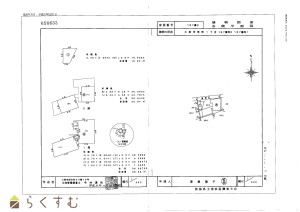
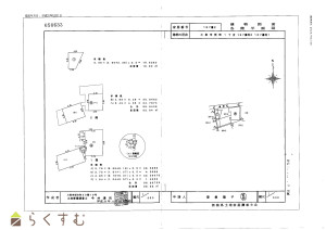
所在地
新潟県三条市荒町1丁目9-12
物件へのルート表示
-
物件種別
中古一戸建て
-
構造
木造
-
階建
地上2階建
-
建ぺい率/容積率
60%/200%
-
建物面積
152.5㎡
/46.13坪
-
土地面積
199.89㎡
/60.46坪
-
築年月
1967年8月(築58年)
-
入居時期
相談
-
用途地域
第1種住居地域
-
地目
宅地 (現状:宅地)
-
都市計画
非線引き都市計画区域
-
形状
-
-
道路
北側:三条市道荒町中通り1号線 幅員2.2m
-
私道
-
-
その他の制限
再建築の場合、道路中心線より2m以上のセットバックが必要です。
物件詳細情報
-
所在階/階数
-
-
号室
-
-
販売価格
2,500,000円
-
方位
-
-
間取り
7DK
-
専有面積
-
-
バルコニー面積
-
-
その他面積
19.83㎡
/5.99坪
車庫
-
駐車場
-
-
管理費
-
-
修繕積立金
-
-
現況
空家
-
仲介手数料
330,000円
-
利用制限
-
-
学校区
裏館小学校(1,087m)・第三中学校(720m)
-
設備
閑静な住宅街、都市ガス、上水道、下水道
-
取引態様
専任
-
情報登録日
2026/03/18
-
次回更新予定日
2026/04/17
-
取引条件有効期限
2024/12/01
備考
準防火地域・特別工業地域・居住誘導区域・都市機能誘導区域
取扱い会社
株式会社 ユタカ不動産
Copyright (C) 株式会社 コモンライフ・コーポレーション. All Rights Reserved.
不動産検索サイト「らくすむ」及び関連サイトに記載の不動産情報は、会員規約に則り、情報提供会社様の責任のもとに発信されております。
不動産の賃借、購入に関しては賃借者、購入者ご自身が情報を確認され、会社企業様から説明を受けられたうえで判断をお願いいたします。
不動産検索サイト「らくすむ」及び関連サイトに記載の不動産情報、写真、デザイン、コンテンツなどの無断転載・転用・複製など禁止します。