
モール荒町 詳細
1号室
お気に入り
追加済み
物件画像を詳しく見る

三条体育館目の前です!駐車場3台無料!
物件概要
-
賃料
10万円/月
-
管理費
なし
-
敷/礼
2ヶ月/
なし
-
間取り
-
-
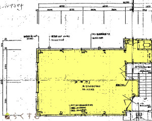
広さ
57.8㎡
/17.48坪
-
階建
地上2階建
-
築年数
1967年4月(築59年)
-
種別
店舗
-
住所
新潟県三条市荒町12-30
物件へのルート表示
-
交通
駅:弥彦線 北三条駅から徒歩9分、バス:体育文化センターから徒歩1分
-
物件コード
00052-100239
-
物件名
モール荒町
-
交通
駅:弥彦線 北三条駅から徒歩9分、バス:体育文化センターから徒歩1分
-
所在地
新潟県三条市荒町12-30
物件へのルート表示
-
物件種別
店舗
-
総戸数
4戸
-
構造
木造鉄骨
-
階建
地上2階建
-
所在階/階数
1階/2階
-
号室
1号室
-
専有面積
57.8㎡
/17.48坪
-
方位
-
-
間取り
-
-
賃料
10万円/月
-
管理費
-
-
礼金
-
-
敷金
2ヶ月
-
共益費
-
-
ほか初期費用
-
-
その他諸費用
-
-
更新料
-
-
火災(家財)保険
加入必須
-
駐車場
3台無料
-
町内費
-
-
バイク料金
-
-
鍵交換費
-
-
清掃料
-
-
更新事務手数料
-
-
保証区分
連帯保証人+保証会社
-
保証会社
区分:加入要
保証会社名:その他
(ジェイリース株式会社)
初回保証料:月額総額の100%
継続保証料(年):月額総額の10%
※必須※
-
連帯保証人
[区分]
要
-
-
仲介手数料
110,000円
-
手数料負担割合
貸主:0%
借主:100%
-
手数料配分割合
元付:50%
客付:50%
-
築年月
1967年4月(築59年)
-
利用制限
事務所利用:可
-
学校区
裏館小学校(897m)・第三中学校(520m)
-
設備
1階、エアコン、居抜き、給湯、駐車場あり
-
入居時期
2026年9月以降
-
取引態様
仲介
-
情報登録日
2026/04/06
-
次回更新予定日
2026/05/08
備考
美容院居抜き店舗として募集します。
外装は外壁オレンジ色箇所は借主様でお好きな外装に変えて頂く事が出来ます。
※7月末迄営業中ですがご内覧希望の際は事前にお問合せください。
取扱い会社
株式会社 ユタカ不動産
Copyright (C) 株式会社 コモンライフ・コーポレーション. All Rights Reserved.
不動産検索サイト「らくすむ」及び関連サイトに記載の不動産情報は、会員規約に則り、情報提供会社様の責任のもとに発信されております。
不動産の賃借、購入に関しては賃借者、購入者ご自身が情報を確認され、会社企業様から説明を受けられたうえで判断をお願いいたします。
不動産検索サイト「らくすむ」及び関連サイトに記載の不動産情報、写真、デザイン、コンテンツなどの無断転載・転用・複製など禁止します。