
ハーミットクラブⅡ 詳細
202号室
お気に入り
追加済み
物件画像を詳しく見る

インターネット無料!広々LDK!スーパー、バス停至近で利便性抜群
物件概要
-
賃料
5.5万円/月
-
管理費
なし
-
敷/礼
1万円/
なし
-
間取り
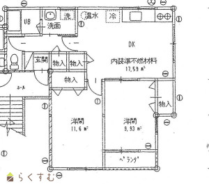
2LDK (洋室:6、7)、LDK10帖、ベランダ0.75帖
-
広さ
56.92㎡
/17.21坪
-
階建
地上2階建
-
築年数
1997年3月(築28年)
-
種別
アパート・マンション・一戸建て
-
住所
新潟県長岡市蓮潟1丁目12-16
物件へのルート表示
-
交通
駅:上越新幹線 長岡駅から徒歩54分、バス:蓮潟から徒歩3分
-
物件コード
00051-100507
-
物件名
ハーミットクラブⅡ
-
交通
駅:上越新幹線 長岡駅から徒歩54分、バス:蓮潟から徒歩3分
-
所在地
新潟県長岡市蓮潟1丁目12-16
物件へのルート表示
-
物件種別
アパート・マンション・一戸建て
-
総戸数
4戸
-
構造
木造
-
階建
地上2階建
-
所在階/階数
2階/2階
-
号室
202号室
-
専有面積
56.92㎡
/17.21坪
-
方位
東
-
間取り
2LDK (洋室:6、7)、LDK10帖、ベランダ0.75帖
-
賃料
5.5万円/月
-
管理費
-
-
礼金
-
-
敷金
1万円
-
共益費
-
-
ほか初期費用
-
-
その他諸費用
-
-
更新料
-
-
火災(家財)保険
19,000円
東京海上ミレア(2年間)
-
駐車場
1台込、2台目5000円(空要確認)
-
町内費
250円
-
バイク料金
-
-
鍵交換費
17,600円
-
清掃料
-
-
更新事務手数料
-
-
保証区分
連帯保証人+保証会社
-
保証会社
区分:加入要
保証会社名:日本インシュア
月額総家賃の50%が必要。60歳以上は60%必要(最低保証料25,000円)いずれも更新料10,000円/年がございます。
-
家賃保証金
27,625円
賃料総額の50%(最低保証料20,000円)
-
連帯保証人
[区分]
要
審査内容によっては保証会社をお願いする場合がございます。
-
仲介手数料
60,500円
-
手数料負担割合
貸主:0%
借主:100%
-
手数料配分割合
元付:50%
客付:50%
-
築年月
1997年3月(築28年)
-
利用制限
シニア(60歳以上)入居:相談、ペット:不可、楽器:不可
-
学校区
上川西小学校(1,614m)・江陽中学校(2,195m)
-
設備
バス停近く、駐車2台可、駐車場1台無料、角住居、IHクッキングヒーター、バストイレ別、洗面所独立、エアコン、エアコン2基、オール電化、バルコニー、全居室フローリング、洗濯機置場 室内、全室収納、BS端子・アンテナ、TVモニター付きインターホン、インターネット無料、即入居可、保証会社利用可能、高齢者相談
-
入居時期
即入居可
-
取引態様
仲介
-
情報登録日
2025/11/07
-
次回更新予定日
2025/12/28
備考
取扱い会社
有限会社 高治企画
-
TEL
0258-27-6599
-
所在地
新潟県長岡市荻野1丁目6番7号
-
交通
JR長岡駅、バス(越後交通)
-
営業時間
9:00~17:00/定休日:土曜・日曜・祭日(3月は無休)
-
免許番号
新潟県知事(6)第4078号
-
所属団体名
新潟県宅地建物取引協会 長岡支部
-
取引態様
仲介
Copyright (C) 株式会社 コモンライフ・コーポレーション. All Rights Reserved.
不動産検索サイト「らくすむ」及び関連サイトに記載の不動産情報は、会員規約に則り、情報提供会社様の責任のもとに発信されております。
不動産の賃借、購入に関しては賃借者、購入者ご自身が情報を確認され、会社企業様から説明を受けられたうえで判断をお願いいたします。
不動産検索サイト「らくすむ」及び関連サイトに記載の不動産情報、写真、デザイン、コンテンツなどの無断転載・転用・複製など禁止します。