
第二松風荘 詳細
2号室
お気に入り
追加済み
物件画像を詳しく見る

10月上旬リフォーム完了!!トイレ、キッチン、お風呂等設備は新品です。
物件概要
-
賃料
4.3万円/月
-
管理費
なし
-
敷/礼
1ヶ月/
なし
-
間取り
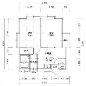
2DK (和室:6畳) (洋室:6)
-
広さ
37.6㎡
/11.37坪
-
階建
地上2階建
-
築年数
1979年9月(築46年)
-
種別
アパート・マンション・一戸建て
-
住所
長岡市蓮潟1丁目6-21
物件へのルート表示
-
交通
駅:上越新幹線 長岡駅から徒歩42分、バス:蓮潟から徒歩4分
-
物件コード
00051-100451
-
物件名
第二松風荘
-
交通
駅:上越新幹線 長岡駅から徒歩42分、バス:蓮潟から徒歩4分
-
所在地
長岡市蓮潟1丁目6-21
物件へのルート表示
-
物件種別
アパート・マンション・一戸建て
-
総戸数
4戸
-
構造
木造
-
階建
地上2階建
-
所在階/階数
1階/2階
-
号室
2号室
-
専有面積
37.6㎡
/11.37坪
-
方位
指定なし
-
間取り
2DK (和室:6畳) (洋室:6)
-
賃料
4.3万円/月
-
管理費
-
-
礼金
-
-
敷金
1ヶ月
-
共益費
-
-
ほか初期費用
-
-
その他諸費用
-
-
更新料
-
-
火災(家財)保険
19,000円
2年間 東京海上ミレア少額短期保険
-
駐車場
1台付無料
-
町内費
250円
-
バイク料金
-
-
鍵交換費
17,600円
-
清掃料
-
-
更新事務手数料
-
-
保証区分
連帯保証人+保証会社
-
保証会社
区分:加入要
保証会社名:日本インシュア
-
-
家賃保証金
20,000円
-
連帯保証人
[区分]
要
-
-
仲介手数料
47,300円
-
手数料負担割合
貸主:0%
借主:100%
-
手数料配分割合
元付:50%
客付:50%
-
築年月
1979年9月(築46年)
-
利用制限
ペット:不可、楽器:不可、事務所利用:不可
-
学校区
上川西小学校(1,434m)・江陽中学校(2,050m)
-
設備
閑静な住宅街、敷地内ゴミ置き場、駐車場1台無料、バストイレ別、追いだき機能付き、温水洗浄便座、エアコン、都市ガス、即入居可
-
入居時期
即入居可
-
取引態様
仲介
-
情報登録日
2026/01/25
-
次回更新予定日
2026/04/20
備考
取扱い会社
有限会社 高治企画
-
TEL
0258-27-6599
-
所在地
新潟県長岡市荻野1丁目6番7号
-
交通
JR長岡駅、バス(越後交通)
-
営業時間
9:00~17:00/定休日:土曜・日曜・祭日(3月は無休)
-
免許番号
新潟県知事(6)第4078号
-
所属団体名
新潟県宅地建物取引協会 長岡支部
-
取引態様
仲介
Copyright (C) 株式会社 コモンライフ・コーポレーション. All Rights Reserved.
不動産検索サイト「らくすむ」及び関連サイトに記載の不動産情報は、会員規約に則り、情報提供会社様の責任のもとに発信されております。
不動産の賃借、購入に関しては賃借者、購入者ご自身が情報を確認され、会社企業様から説明を受けられたうえで判断をお願いいたします。
不動産検索サイト「らくすむ」及び関連サイトに記載の不動産情報、写真、デザイン、コンテンツなどの無断転載・転用・複製など禁止します。