
寿2丁目駐車場 詳細
お気に入り
追加済み
物件画像を詳しく見る

消雪設備有り 舗装済み
物件概要
-
賃料
0.65万円/月
-
管理費
なし
-
敷/礼
なし/
なし
-
間取り
-
-
広さ
-
-
階建
-
-
築年数
-
-
種別
駐車場
-
住所
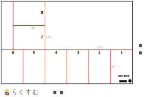
新潟県長岡市寿2-157-2
物件へのルート表示
-
交通
駅:信越線 北長岡駅から徒歩26分、バス:北園橋から徒歩1分
敷金・礼金なし
-
物件コード
00043-104471
-
物件名
寿2丁目駐車場
-
交通
駅:信越線 北長岡駅から徒歩26分、バス:北園橋から徒歩1分
-
所在地
新潟県長岡市寿2-157-2
物件へのルート表示
-
物件種別
駐車場
-
総戸数
-
-
構造
-
-
階建
-
-
所在階/階数
-
-
号室
-
-
専有面積
-
-
方位
-
-
間取り
-
-
賃料
0.65万円/月
-
管理費
-
-
礼金
-
-
敷金
-
-
共益費
-
-
ほか初期費用
-
-
その他諸費用
-
-
更新料
-
-
火災(家財)保険
-
-
駐車場
-
-
町内費
-
-
バイク料金
-
-
鍵交換費
-
-
清掃料
-
-
口座振替料
330円
-
更新事務手数料
-
-
保証区分
保証会社+緊急連絡先
-
保証会社
区分:加入要
保証会社名:ジェイリース
-
-
家賃保証金
5,200円
-
連帯保証人
[区分]
不要
-
-
仲介手数料
6,501円
-
手数料負担割合
貸主:0%
借主:100%
-
手数料配分割合
元付:50%
客付:50%
-
築年月
-
-
利用制限
-
-
学校区
新町小学校(1,397m)・北中学校(287m)
-
設備
舗装、即利用可能、融雪井戸あり、保証会社要加入
-
入居時期
即入居可
-
取引態様
代理
-
情報登録日
2025/04/10
-
次回更新予定日
2026/01/03
備考
取扱い会社
ドアーズ 株式会社
-
TEL
0258-21-3751
-
所在地
新潟県長岡市古正寺町108-1
-
交通
越後交通「西病院前」バス停徒歩約5分
-
営業時間
9:00~18:00/定休日:年末・年始・GW・夏期(お盆)
-
免許番号
新潟県知事(10)第2891号
-
所属団体名
新潟県宅地建物取引業協会 長岡支部
-
取引態様
代理
Copyright (C) 株式会社 コモンライフ・コーポレーション. All Rights Reserved.
不動産検索サイト「らくすむ」及び関連サイトに記載の不動産情報は、会員規約に則り、情報提供会社様の責任のもとに発信されております。
不動産の賃借、購入に関しては賃借者、購入者ご自身が情報を確認され、会社企業様から説明を受けられたうえで判断をお願いいたします。
不動産検索サイト「らくすむ」及び関連サイトに記載の不動産情報、写真、デザイン、コンテンツなどの無断転載・転用・複製など禁止します。