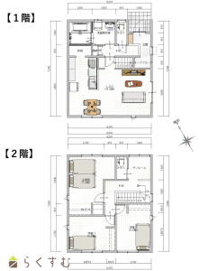
2階各居室は全て角部屋となり2方向に窓があります。
物件画像を詳しく見る

【価格改定】 完成済物件なのでご案内可能です!
物件概要
宮内小学校まで徒歩17分、宮内中学校まで徒歩15分です。
-
物件コード
00041-200831
-
物件名
【価格改定】今井2丁目B棟(学区:宮内小・宮内中)
-
交通
駅:信越線 宮内駅から徒歩20分、バス:今宮橋から徒歩5分
-
所在地
新潟県長岡市今井2丁目187-2
物件へのルート表示
-
物件種別
新築一戸建て
-
構造
木造
-
階建
地上2階建
-
建ぺい率/容積率
50%/80%
-
建物面積
91.08㎡
/27.55坪
-
土地面積
150.44㎡
/45.5坪
-
築年月
2023年12月(築1年)
-
入居時期
随時入居(引き渡し)可
-
用途地域
第1種低層住居専用地域
-
地目
宅地 (現状:宅地)
-
都市計画
市街化区域
-
形状
-
-
道路
北側/公道/幅員 約6.0m
-
私道
-
-
その他の制限
外壁後退1.0m
物件詳細情報
-
所在階/階数
-
-
号室
-
-
販売価格
22,550,000円
-
方位
南
-
間取り
3LDK (洋室:7、6、6)、LDK16.0
-
専有面積
-
-
バルコニー面積
-
-
その他面積
-
-
駐車場
-
-
管理費
-
-
修繕積立金
-
-
現況
空家
-
仲介手数料
なし
-
利用制限
-
-
学校区
宮内小学校(1,300m)・宮内中学校(1,200m)
-
設備
整形地、前面道路6m以上、日当り良好、閑静な住宅街、瑕疵担保保険付き、建物確認・完了検査済証あり、LDK15畳以上、全室フローリング、駐車場2台以上、庭あり、TVインターホン、複層ガラス、システムキッチン、IHクッキングヒーター、浄水器、食器洗浄乾燥機、追いだき機能付き、バス1坪以上、温水洗浄便座、シャワー付き洗面台、エアコン、24時間換気システム、オール電化、省エネ給湯、上水道、下水道、電気、全居室収納あり、BS端子、照明器具付き
-
取引態様
売主
-
情報登録日
2025/09/29
-
次回更新予定日
2025/10/26
-
取引条件有効期限
2025/12/31
備考
■令和7年9月価格改定(旧価格2,355万円)
■キッチンには収納付で、食品や飲料のストック場所には困りません♪
■細かい収納が豊富で収納スペースには困りません♪
■2階には広々サンルームがあり、物干しスペースも充実♪
■宮内小学校、宮内中学校共に徒歩20分圏内です♪
■ウオロク要町店、クスリのアオキ西宮内店、車で5分圏内で買い物施設も充実♪
【月々5万円台~返済可能】
※借入額:2,355万円、借入年数:40年、金利:0.825%、銀行:第四北越銀行
以上の条件算出した場合月々返済額:58,165円
取扱い会社
株式会社 高野不動産販売
-
TEL
0258-33-7711
-
所在地
新潟県長岡市柏町1丁目4-33
-
交通
長岡駅
-
営業時間
9:00~17:30/定休日:土曜日・日曜日・祝日・お盆・年末年始
-
免許番号
新潟県知事(1)第5568号
-
所属団体名
(公社)新潟県宅地建物取引業協会,(公社)首都圏不動産公正取引協議会,(公財)日本賃貸住宅管理協会
-
取引態様
売主