
中沢3丁目売住宅 詳細
お気に入り
追加済み
物件画像を詳しく見る

陽当たり良好!状態の良い住宅です。カーポート3台駐車できます!収納も充実しています!
物件概要
アクロスプラザ長岡まで徒歩約11分と利便性の良い立地です♪広いお庭でゆったりとした生活をお楽しめます♪
-
物件コード
00040-201174
-
物件名
中沢3丁目売住宅
-
交通
駅:信越線 長岡駅から徒歩31分、バス:中沢三叉路から徒歩6分
-
所在地
新潟県長岡市中沢3-564-4
物件へのルート表示
-
物件種別
中古一戸建て
-
構造
木造
-
階建
地上2階建
-
建ぺい率/容積率
60%/200%
-
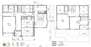
建物面積
199.73㎡
/60.41坪
-
土地面積
408.75㎡
/123.64坪
-
築年月
1998年10月(築27年)
-
入居時期
随時入居(引き渡し)可
-
用途地域
第1種低層住居専用地域
-
地目
宅地 (現状:宅地)
-
都市計画
市街化区域
-
形状
間口 2553m × 奥行 15.99m
-
道路
公道
-
私道
-
-
その他の制限
-
物件詳細情報
-
所在階/階数
-
-
号室
-
-
販売価格
24,500,000円
-
方位
南東
-
間取り
5LDK (和室:6畳、6畳) (洋室:13.5、12、10.75)、LDK18
-
専有面積
-
-
バルコニー面積
-
-
その他面積
-
-
駐車場
-
-
管理費
-
-
修繕積立金
-
-
現況
空家
-
仲介手数料
874,500円
-
利用制限
-
-
学校区
栖吉小学校(852m)・栖吉中学校(1,009m)
-
設備
日当り良好、閑静な住宅街、LDK15帖以上、駐車3台以上可能、南向き、複層ガラス、システムキッチン、カウンターキッチン、追いだき機能付き、バス1坪以上、温水洗浄便座、トイレ2か所以上、エアコンあり、都市ガス、上水道、下水道、バリアフリー、全居室収納あり、即引き渡し可能
-
取引態様
一般
-
情報登録日
2025/11/06
-
次回更新予定日
2026/04/15
-
取引条件有効期限
2026/02/04
備考
取扱い会社
髙頭不動産 株式会社
-
TEL
0120-1818-27
-
所在地
新潟県長岡市千歳1-3-25
-
交通
長岡駅
-
営業時間
8時30分~17時30分(大手支店は9時~18時)/定休日:本社:土日祝日(事前予約での対応可能)、支店:日曜祝日第5土曜(毎年2月下旬から3月は休みなし)
-
免許番号
新潟県知事(17)第191号
-
所属団体名
新潟県宅地建物取引協会 長岡支部
-
取引態様
一般
Copyright (C) 株式会社 コモンライフ・コーポレーション. All Rights Reserved.
不動産検索サイト「らくすむ」及び関連サイトに記載の不動産情報は、会員規約に則り、情報提供会社様の責任のもとに発信されております。
不動産の賃借、購入に関しては賃借者、購入者ご自身が情報を確認され、会社企業様から説明を受けられたうえで判断をお願いいたします。
不動産検索サイト「らくすむ」及び関連サイトに記載の不動産情報、写真、デザイン、コンテンツなどの無断転載・転用・複製など禁止します。