
1棟貸 北半田 国道252号線沿い 倉庫付き貸事務所 詳細
お気に入り
追加済み
物件画像を詳しく見る

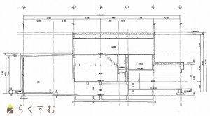
1~3階の1棟貸 倉庫・事務所として
物件概要
-
賃料
40万円/月
-
管理費
なし
-
敷/礼
1ヶ月/
なし
-
間取り
-
-
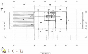
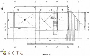
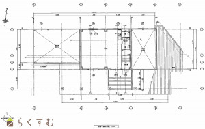
広さ
381.59㎡
/115.43坪
-
階建
地上3階建
-
築年数
1982年1月(築43年)
-
種別
事務所
-
住所
新潟県柏崎市北半田2丁目1-14新栄ビル
物件へのルート表示
-
交通
駅:信越線 茨目駅から徒歩20分、バス:北半田1丁目から徒歩4分
駐車場30~40台可能
-
物件コード
00037-100765
-
物件名
1棟貸 北半田 国道252号線沿い 倉庫付き貸事務所
-
交通
駅:信越線 茨目駅から徒歩20分、バス:北半田1丁目から徒歩4分
-
所在地
新潟県柏崎市北半田2丁目1-14新栄ビル
物件へのルート表示
-
物件種別
事務所
-
総戸数
1戸
-
構造
鉄骨
-
階建
地上3階建
-
所在階/階数
-
-
号室
-
-
専有面積
381.59㎡
/115.43坪
-
方位
-
-
間取り
-
-
賃料
40万円/月
-
管理費
-
-
礼金
-
-
敷金
1ヶ月
-
共益費
-
-
ほか初期費用
-
-
その他諸費用
-
-
更新料
-
-
火災(家財)保険
別途ご加入ください
-
駐車場
-
町内費
-
-
バイク料金
-
-
鍵交換費
-
-
清掃料
-
-
更新事務手数料
11,000円
-
保証区分
保証会社+緊急連絡先
-
保証会社
区分:加入要
保証会社名:ジェイリース
事業用プランは保証料賃料の100%となります
-
家賃保証金
400,000円
-
連帯保証人
[区分]
不要
-
-
仲介手数料
440,000円
-
手数料負担割合
貸主:-%
借主:100%
-
手数料配分割合
元付:50%
客付:50%
-
築年月
1982年1月(築43年)
-
利用制限
法人:可、事務所利用:可
-
学校区
比角小学校(566m)・第二中学校(857m)
-
設備
男女トイレ別、駐車場あり
-
入居時期
相談
-
取引態様
仲介
-
情報登録日
2025/07/22
-
次回更新予定日
2026/01/04
備考
取扱い会社
株式会社 ai-will
-
TEL
0257-35-5370
-
所在地
新潟県柏崎市田中10-31
-
交通
国道8号線よりすぐ
-
営業時間
平日9:00~18:00土日祝10:00~16:0/定休日:当社規定 (お盆・年末年始・GW)
-
免許番号
新潟県知事(4)4821号
-
所属団体名
新潟県宅地建物取引協会 柏崎支部
-
取引態様
仲介
Copyright (C) 株式会社 コモンライフ・コーポレーション. All Rights Reserved.
不動産検索サイト「らくすむ」及び関連サイトに記載の不動産情報は、会員規約に則り、情報提供会社様の責任のもとに発信されております。
不動産の賃借、購入に関しては賃借者、購入者ご自身が情報を確認され、会社企業様から説明を受けられたうえで判断をお願いいたします。
不動産検索サイト「らくすむ」及び関連サイトに記載の不動産情報、写真、デザイン、コンテンツなどの無断転載・転用・複製など禁止します。