
割町新田事務所倉庫 詳細
お気に入り
追加済み
物件画像を詳しく見る

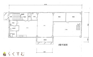
1階は事務所または倉庫として利用できます。
物件概要
-
賃料
15万円/月
-
管理費
なし
-
敷/礼
3ヶ月/
なし
-
間取り
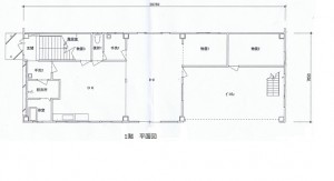
LDK (和室:10畳、6畳、6畳、6畳、8畳、8畳、6畳)、LDK約23畳、浴室1階に1か所・2階に1か所 トイレ各階に1か所 2階各室入口ドアは鍵付エアコン付 駐車場6~7台
-
広さ
316.71㎡
/95.8坪
-
階建
地上2階建
-
築年数
1983年12月(築42年)
-
種別
事務所
-
住所
新潟県刈羽郡刈羽村割町新田830-1
物件へのルート表示
-
交通
駅:越後線 荒浜駅から徒歩22分、バス:割町新田集落センター前から徒歩2分
2階は倉庫としての利用がお勧めです。
-
物件コード
00031-100161
-
物件名
割町新田事務所倉庫
-
交通
駅:越後線 荒浜駅から徒歩22分、バス:割町新田集落センター前から徒歩2分
-
所在地
新潟県刈羽郡刈羽村割町新田830-1
物件へのルート表示
-
物件種別
事務所
-
総戸数
-
-
構造
鉄骨
-
階建
地上2階建
-
所在階/階数
2階/2階
-
号室
-
-
専有面積
316.71㎡
/95.8坪
-
方位
-
-
間取り
LDK (和室:10畳、6畳、6畳、6畳、8畳、8畳、6畳)、LDK約23畳、浴室1階に1か所・2階に1か所 トイレ各階に1か所 2階各室入口ドアは鍵付エアコン付 駐車場6~7台
-
賃料
15万円/月
-
管理費
-
-
礼金
-
-
敷金
3ヶ月
-
共益費
-
-
ほか初期費用
-
-
その他諸費用
-
-
更新料
-
-
火災(家財)保険
要加入
-
駐車場
6~7台可無料
-
町内費
-
-
バイク料金
-
-
鍵交換費
-
-
清掃料
-
-
更新事務手数料
-
-
保証区分
連帯保証人のみ
-
保証会社
区分:指定なし
-
-
連帯保証人
[区分]
要
-
-
仲介手数料
165,000円
-
手数料負担割合
貸主:-%
借主:100%
-
手数料配分割合
元付:50%
客付:50%
-
築年月
1983年12月(築42年)
-
利用制限
事務所利用:可
-
学校区
刈羽小学校(997m)・刈羽中学校(1,177m)
-
設備
駐車場あり
-
入居時期
即入居可
-
取引態様
仲介
-
情報登録日
2025/10/22
-
次回更新予定日
2026/01/03
備考
取扱い会社
株式会社 ウェルネスホーム
Copyright (C) 株式会社 コモンライフ・コーポレーション. All Rights Reserved.
不動産検索サイト「らくすむ」及び関連サイトに記載の不動産情報は、会員規約に則り、情報提供会社様の責任のもとに発信されております。
不動産の賃借、購入に関しては賃借者、購入者ご自身が情報を確認され、会社企業様から説明を受けられたうえで判断をお願いいたします。
不動産検索サイト「らくすむ」及び関連サイトに記載の不動産情報、写真、デザイン、コンテンツなどの無断転載・転用・複製など禁止します。