
Eプラザ2F 貸店舗 詳細
お気に入り
追加済み
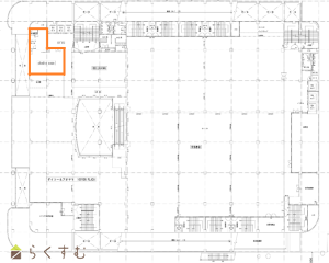
物件画像を詳しく見る

定期建物賃貸借契約物件 Eプラザ2F貸店舗・30坪 賃料相談可! R8年6月1日より入居可能予定 事前予約にて受付中!
物件概要
-
賃料
22万円/月
-
管理費
なし
-
敷/礼
200万円/
なし
-
間取り
-
-
広さ
99.27㎡
/30.02坪
-
階建
地上6階地下1階建
-
築年数
1985年9月(築40年)
-
種別
店舗
-
住所
新潟県長岡市台町2丁目4番56号
物件へのルート表示
-
交通
駅:信越線 長岡駅から徒歩5分、バス:長岡駅東口から徒歩4分
定期建物賃貸借契約物件 Eプラザ2F貸店舗・30坪 賃料相談可! R8年6月1日より入居可能予定 事前予約にて受付中!
-
物件コード
00027-100336
-
物件名
Eプラザ2F 貸店舗
-
交通
駅:信越線 長岡駅から徒歩5分、バス:長岡駅東口から徒歩4分
-
所在地
新潟県長岡市台町2丁目4番56号
物件へのルート表示
-
物件種別
店舗
-
総戸数
-
-
構造
鉄骨鉄筋コン
-
階建
地上6階地下1階建
-
所在階/階数
2階/6階
-
号室
-
-
専有面積
99.27㎡
/30.02坪
-
方位
-
-
間取り
-
-
賃料
22万円/月
税込み
-
管理費
-
-
礼金
-
-
敷金
200万円
-
共益費
22,000円
賃料の10%
-
ほか初期費用
-
-
その他諸費用
-
-
更新料
-
-
火災(家財)保険
-
-
駐車場
料金別途 従業員、来客優遇あり
-
町内費
-
-
バイク料金
-
-
鍵交換費
-
-
清掃料
-
-
更新事務手数料
-
-
保証区分
連帯保証人+緊急連絡先
-
保証会社
区分:指定なし
-
-
連帯保証人
[区分]
要
要連帯保証人、 火災保険等を加入の事
-
仲介手数料
-
-
手数料負担割合
貸主:-%
借主:-%
-
手数料配分割合
元付:-%
客付:-%
-
築年月
1985年9月(築40年)
-
利用制限
学生:不可、子供:不可、ペット:不可、楽器:不可、ルームシェア:不可
-
学校区
阪之上小学校(233m)・南中学校(1,028m)
-
設備
融雪設備あり、エアコン、男女トイレ別、エレベーター、駐車場あり
-
入居時期
R8年6月1日より入居可能予定
-
取引態様
貸主
-
情報登録日
2026/03/02
-
次回更新予定日
2026/06/14
備考
・電気、ガス、水道代は子メーターにて、実測精算します。 ・詳細は、お問い合わせください。
取扱い会社
越後交通 株式会社
Copyright (C) 株式会社 コモンライフ・コーポレーション. All Rights Reserved.
不動産検索サイト「らくすむ」及び関連サイトに記載の不動産情報は、会員規約に則り、情報提供会社様の責任のもとに発信されております。
不動産の賃借、購入に関しては賃借者、購入者ご自身が情報を確認され、会社企業様から説明を受けられたうえで判断をお願いいたします。
不動産検索サイト「らくすむ」及び関連サイトに記載の不動産情報、写真、デザイン、コンテンツなどの無断転載・転用・複製など禁止します。