
小千谷 平沢テナント 詳細
お気に入り
追加済み
物件画像を詳しく見る

国道117号線に面する好立地 賃貸として貸出し中の為、投資物件にもおすすめ♪ 敷地内17台駐車可能、融雪設備有り
物件概要
交通量の多い道路に面している為、商業利用に最適♪築浅の為、内観も綺麗です♪
-
物件コード
00024-200851
-
物件名
小千谷 平沢テナント
-
交通
駅:上越線 小千谷駅から徒歩39分、バス:平沢町から徒歩4分
-
所在地
新潟県小千谷市平沢2丁目789番地2
物件へのルート表示
-
物件種別
投資物件・その他
-
物件区分
その他
-
構造
鉄骨
-
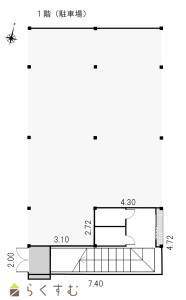
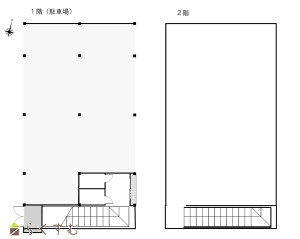
階建
地上2階建
-
建ぺい率/容積率
60%/200%
-
建物面積
190.99㎡
/57.77坪
-
土地面積
409㎡
/123.72坪
-
築年月
2011年10月(築14年)
-
入居時期
相談
-
用途地域
準住居地域
-
地目
宅地
-
都市計画
非線引き都市計画区域
-
形状
-
-
道路
国道117号線 幅員18m
-
私道
-
-
その他の制限
-
物件詳細情報
-
所在階/階数
-
-
号室
-
-
販売価格
49,800,000円
-
表面利回り
(満室想定時)
-
-
満室想定年収
-
(想定月収:
-
)
-
現行利回り
-
-
現行年間年収
-
-
住戸数
-
-
方位
-
-
間取り
-
-
専有面積
-
-
バルコニー面積
-
-
その他面積
-
-
駐車場
屋外6台、屋根付11台
-
管理費
-
-
修繕積立金
-
-
現況
賃貸中
-
仲介手数料
1,650,000円
-
利用制限
-
-
学校区
小千谷小学校(1,279m)・小千谷中学校(668m)
-
設備
角地、南側道路面す、駐車場(近隣含む)、事業向け
-
取引態様
一般
-
情報登録日
2024/04/19
-
次回更新予定日
2025/12/28
-
取引条件有効期限
2030/09/30
備考
・現況有姿でのお引渡しと致します。
・公簿面積売買と致します。
・現在賃貸中
・内見をご希望の方は事前にご連絡下さい。
取扱い会社
株式会社 エヌ・アール・ケー総合企画
Copyright (C) 株式会社 コモンライフ・コーポレーション. All Rights Reserved.
不動産検索サイト「らくすむ」及び関連サイトに記載の不動産情報は、会員規約に則り、情報提供会社様の責任のもとに発信されております。
不動産の賃借、購入に関しては賃借者、購入者ご自身が情報を確認され、会社企業様から説明を受けられたうえで判断をお願いいたします。
不動産検索サイト「らくすむ」及び関連サイトに記載の不動産情報、写真、デザイン、コンテンツなどの無断転載・転用・複製など禁止します。