
【中古住宅】長岡市城岡1丁目 中古住宅 詳細
お気に入り
追加済み
物件画像を詳しく見る

//間取りも多く広々とした一戸建て// ■スーパーチャレンジャー様まで徒歩1分で買物も便利 ■北長岡駅まで徒歩5分圏内 ■車庫付き宅内消雪設備完備
物件概要
東南向き立地日当たり良好。国道8号線まで車で2分♪
-
物件コード
00017-200356
-
物件名
【中古住宅】長岡市城岡1丁目 中古住宅
-
交通
駅:信越線 北長岡駅から徒歩9分、バス:新町3丁目から徒歩4分
-
所在地
新潟県長岡市城岡1丁目448番7
物件へのルート表示
-
物件種別
中古一戸建て
-
構造
木造
-
階建
地上2階建
-
建ぺい率/容積率
70%/160%
-
建物面積
141.07㎡
/42.67坪
-
土地面積
200.46㎡
/60.63坪
-
築年月
2008年7月(築17年)
-
入居時期
相談
-
用途地域
第2種中高層住居専用地域
-
地目
宅地 (現状:宅地)
-
都市計画
市街化区域
-
形状
間口 15.6m × 奥行 12.7m
-
道路
東:長岡市道約4m/南:長岡市道約4m ※いずれも消雪道路
-
私道
-
-
その他の制限
建築基準法第22条指定/まちなか居住区域
物件詳細情報
-
所在階/階数
-
-
号室
-
-
販売価格
22,000,000円
-
方位
南東
-
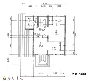
間取り
5DK (和室:6畳) (洋室:5、7.2、8、8)、約DK10帖、2階:3帖(クローゼット)/ 屋外車庫:18.88㎡
-
専有面積
-
-
バルコニー面積
-
-
その他面積
3.31㎡
/1坪
2階:物干しスペース
-
駐車場
-
-
管理費
-
-
修繕積立金
-
-
現況
空家
-
仲介手数料
792,000円
-
利用制限
-
-
学校区
新町小学校(437m)・北中学校(839m)
-
設備
角地、日当り良好、閑静な住宅街、スーパー近く、新築時図面あり、建物確認・完了検査済証あり、駐車2台可能、駐車場融雪設備あり、TVインターホン、複層ガラス、システムキッチン、3口コンロ、追いだき機能付き、バス1坪以上、温水洗浄便座、トイレ2か所以上、シャワー付き洗面台、エアコンあり、24時間換気システム、都市ガス、上水道、下水道、ウォークインクローゼット、全居室収納あり、床下収納、シューズBOX
-
取引態様
一般
-
情報登録日
2025/11/11
-
次回更新予定日
2026/01/05
-
取引条件有効期限
2025/01/28
備考
●内覧は家財処分後となります。希望の方はご相談ください●前面道路は消雪道路●アンテナ共聴エリアのため費用が掛かります。※現在調査中●売主契約不適合責任免責
取扱い会社
有限会社 ABCホーム
Copyright (C) 株式会社 コモンライフ・コーポレーション. All Rights Reserved.
不動産検索サイト「らくすむ」及び関連サイトに記載の不動産情報は、会員規約に則り、情報提供会社様の責任のもとに発信されております。
不動産の賃借、購入に関しては賃借者、購入者ご自身が情報を確認され、会社企業様から説明を受けられたうえで判断をお願いいたします。
不動産検索サイト「らくすむ」及び関連サイトに記載の不動産情報、写真、デザイン、コンテンツなどの無断転載・転用・複製など禁止します。