
滝谷町中古住宅(ハウスメーカー施工)景色良好♪ 詳細
お気に入り
追加済み
物件画像を詳しく見る

ハウスメーカー施工の中古住宅です♪広々とした土地・建物でお手入れのされたお庭、眺めの良い景色♪駅も徒歩圏内です♪
物件概要
ハウスメーカー施工の中古住宅です♪広々とした土地・建物でお手入れのされたお庭、眺めの良い景色♪駅も徒歩圏内です♪
-
物件コード
00017-200342
-
物件名
滝谷町中古住宅(ハウスメーカー施工)景色良好♪
-
交通
駅:上越線 越後滝谷駅から徒歩8分、バス:滝谷駅前から徒歩1分
-
所在地
新潟県長岡市滝谷町623番1
物件へのルート表示
-
物件種別
中古一戸建て
-
構造
軽量鉄骨
-
階建
地上2階建
-
建ぺい率/容積率
70%/200%
-
建物面積
175.42㎡
/53.06坪
-
土地面積
875.69㎡
/264.89坪
-
築年月
2005年10月(築20年)
-
入居時期
相談
-
用途地域
用途の指定のない地域
-
地目
宅地 (現状:宅地)
-
都市計画
市街化調整区域
-
形状
間口 22.7m × 奥行 34.9m
-
道路
西側長岡市道幅員約6.5m(消雪有)、東側長岡市道幅員約6m
-
私道
-
-
その他の制限
別途農地4.8坪がつくため、農地法第3条の許可が必要です。
物件詳細情報
-
所在階/階数
-
-
号室
-
-
販売価格
17,000,000円
-
方位
西
-
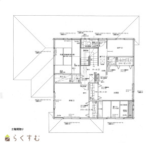
間取り
6DK (和室:8畳、6畳) (洋室:8、8、8、11.5)、DK10
-
専有面積
-
-
バルコニー面積
-
-
その他面積
-
-
駐車場
-
-
管理費
-
-
修繕積立金
-
-
現況
居住中
-
仲介手数料
627,000円
-
利用制限
-
-
学校区
岡南小学校(575m)・岡南中学校(750m)
-
設備
日当り良好、新築時図面あり、修繕記録あり、建物確認・完了検査済証あり、駐車3台以上可能、複層ガラス、システムキッチン、IHクッキングヒーター、食器洗浄乾燥機、追いだき機能付き、バス1坪以上、温水洗浄便座、トイレ2か所以上、シャワー付き洗面台、エアコンあり、オール電化、上水道、下水道、ウォークインクローゼット、全居室収納あり、外装リフォーム済み、田舎暮らし
-
取引態様
一般
-
情報登録日
2025/10/17
-
次回更新予定日
2026/01/06
-
取引条件有効期限
2025/05/13
備考
2020年11月外壁塗装済み
取扱い会社
有限会社 ABCホーム
Copyright (C) 株式会社 コモンライフ・コーポレーション. All Rights Reserved.
不動産検索サイト「らくすむ」及び関連サイトに記載の不動産情報は、会員規約に則り、情報提供会社様の責任のもとに発信されております。
不動産の賃借、購入に関しては賃借者、購入者ご自身が情報を確認され、会社企業様から説明を受けられたうえで判断をお願いいたします。
不動産検索サイト「らくすむ」及び関連サイトに記載の不動産情報、写真、デザイン、コンテンツなどの無断転載・転用・複製など禁止します。