
第6コーポヴィラ 充実設備満載 詳細
203号室
お気に入り
追加済み
物件画像を詳しく見る

駅から徒歩5分♪ オール電化・エコキュートの充実設☆嬉しい宅配ボックス完備
物件概要
-
賃料
5.5万円/月
-
管理費
なし
-
敷/礼
1ヶ月/
なし
-
間取り
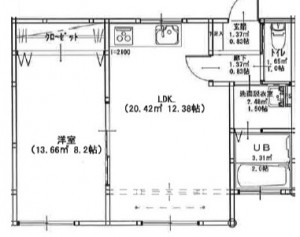
1LDK (洋室:8.2)、LDK12.38
-
広さ
46.4㎡
/14.03坪
-
階建
地上2階建
-
築年数
2016年3月(築10年)
-
種別
アパート・マンション・一戸建て
-
住所
新潟県見附市本所2丁目2-47
物件へのルート表示
-
交通
駅:信越線 見附駅から徒歩5分、バス:見附高校前から徒歩4分
ゆったり広々バスの魅力が物件です♪
-
物件コード
00015-100640
-
物件名
第6コーポヴィラ 充実設備満載
-
交通
駅:信越線 見附駅から徒歩5分、バス:見附高校前から徒歩4分
-
所在地
新潟県見附市本所2丁目2-47
物件へのルート表示
-
物件種別
アパート・マンション・一戸建て
-
総戸数
-
-
構造
木造
-
階建
地上2階建
-
所在階/階数
2階/2階
-
号室
203号室
-
専有面積
46.4㎡
/14.03坪
-
方位
指定なし
-
間取り
1LDK (洋室:8.2)、LDK12.38
-
賃料
5.5万円/月
-
管理費
-
-
礼金
-
-
敷金
1ヶ月
-
共益費
2,000円
-
ほか初期費用
-
-
その他諸費用
-
-
更新料
-
-
火災(家財)保険
20,000円
-
駐車場
1台無料
-
町内費
450円
-
バイク料金
-
-
鍵交換費
18,700円
-
清掃料
-
-
更新事務手数料
10,000円
2年毎税別
-
保証区分
保証会社+緊急連絡先
-
保証会社
区分:加入要
保証会社名:その他
(ジェイリース)
初回保証料
-
家賃保証金
28,725円
-
連帯保証人
[区分]
不要
-
-
仲介手数料
60,500円
-
手数料負担割合
貸主:-%
借主:-%
-
手数料配分割合
元付:-%
客付:-%
-
築年月
2016年3月(築10年)
-
利用制限
-
-
学校区
見附小学校(1,490m)・西中学校(1,026m)
-
設備
閑静な住宅街、最寄り駅近く、LDK12畳以上、駐車場1台無料、駐車場 礼金なし、駐車場 敷金なし、角住居、システムキッチン、2口コンロ、IHクッキングヒーター、バストイレ別、浴室1坪以上、追いだき機能付き、温水洗浄便座、暖房便座、洗面所独立、シャワー付き洗面台、エアコン、エアコン2基、オール電化、サンルーム、複層サッシ、洗濯機置場 室内、エコキュート、玄関収納、クロゼット、TVモニター付きインターホン、保証会社利用可能、礼金不要、新築・築浅物件
-
入居時期
2026年4月上旬
-
取引態様
仲介
-
情報登録日
2026/02/13
-
次回更新予定日
2026/04/18
備考
駐車場2台目3,000円(縦列)
取扱い会社
新潟化成株式会社
-
TEL
0258-86-8222
-
所在地
新潟県見附市本町1-1-39 2F
-
交通
信越線見附駅 バス本町十字路
-
営業時間
9時~18時 ※土曜9時~17時 /定休日:第二第三土曜・日曜・祝日※事前予約での定休日相談可
-
免許番号
新潟県知事(11)2726
-
所属団体名
新潟県宅地建物取引業協会 三条支部
-
取引態様
仲介
Copyright (C) 株式会社 コモンライフ・コーポレーション. All Rights Reserved.
不動産検索サイト「らくすむ」及び関連サイトに記載の不動産情報は、会員規約に則り、情報提供会社様の責任のもとに発信されております。
不動産の賃借、購入に関しては賃借者、購入者ご自身が情報を確認され、会社企業様から説明を受けられたうえで判断をお願いいたします。
不動産検索サイト「らくすむ」及び関連サイトに記載の不動産情報、写真、デザイン、コンテンツなどの無断転載・転用・複製など禁止します。