1階風除室(雪や雨の多い長岡では欠かせない物干場)
物件画像を詳しく見る

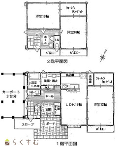
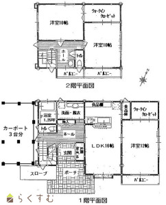
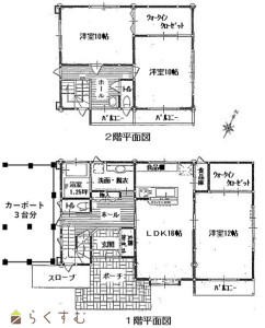
敷地は広めな74.7坪! 駐車スペース4台(3台分のカーポート設置済み)
物件概要
広々とした玄関ホールで、大切なお客様をお出迎え! お部屋は10帖以上のゆったりとした間取りで収納も充実!
-
物件コード
00008-200269
-
物件名
宝5丁目中古住宅「商談中」
-
交通
バス:宝4丁目から徒歩4分
-
所在地
長岡市宝5丁目5番地9
物件へのルート表示
-
物件種別
中古一戸建て
-
構造
木造
-
階建
地上2階建
-
建ぺい率/容積率
60%/200%
-
建物面積
133.12㎡
/40.26坪
-
土地面積
246.96㎡
/74.7坪
-
築年月
2009年9月(築16年)
-
入居時期
随時入居(引き渡し)可
-
用途地域
第1種中高層住居専用地域
-
地目
宅地 (現状:建付地)
-
都市計画
市街化区域
-
形状
間口 12.35m × 奥行 20.01m
-
道路
西側長岡市道8m(消雪道路)
-
私道
-
-
その他の制限
-
物件詳細情報
-
所在階/階数
-
-
号室
-
-
販売価格
23,000,000円
-
方位
西
-
間取り
3LDK (洋室:12、10、10)、LDK16
-
専有面積
-
-
バルコニー面積
-
-
その他面積
-
-
駐車場
-
-
管理費
-
-
修繕積立金
-
-
現況
空家
-
仲介手数料
825,000円
-
利用制限
-
-
学校区
黒条小学校(1,067m)・堤岡中学校(1,125m)
-
設備
日当り良好、閑静な住宅街、新築時図面あり、建物確認・完了検査済証あり、LDK15帖以上、全室フローリング、駐車3台以上可能、南向き、TVインターホン、複層ガラス、システムキッチン、IHクッキングヒーター、3口コンロ、追いだき機能付き、バス1坪以上、温水洗浄便座、トイレ2か所以上、シャワー付き洗面台、床暖房、24時間換気システム、都市ガス、上水道、下水道、全居室収納あり、シューズインクローゼット
-
取引態様
一般
-
情報登録日
2026/03/30
-
次回更新予定日
2026/04/15
-
取引条件有効期限
2026/03/31
備考
■床暖房と温水配管で長岡の冬も安心!
床暖房(1階リビング、洋室、脱衣、トイレ)
各部屋に温水配管済み(温水ルームヒーターをご準備下さい)
■テレビ付の広めなお風呂で、一日の疲れをリフレッシュ!
取扱い会社
株式会社 島岡不動産企画