※画像はイメージとなり実物と異なる場合があります。
物件画像を詳しく見る

オール電化!自然落雪屋根♪商業施設が徒歩圏内◆2階LDK◆家事ラク動線♪◆ファミリークロークあり♪
物件概要
◆オール電化・3LDK住宅! ◆自然落雪屋根で、冬も安心です♪ ◆スーパー・コンビニ・ドラッグストアが徒歩圏内♪毎日のお買物に便利です。 ◆周りからの視線が気にならない2階リビングは、居心地が良く、家族団らんにも最適です。 ◆1.8帖のファミリークロークを物干しスペースの隣に配置。「干す→しまう」がワンステップ。時短が叶う家事動線。 ◆脱衣室と分かれた洗面台で、気兼ねなく使える設計です。プライバシーにも配慮しました。
-
物件コード
00007-200752
-
物件名
十日町市西本町2丁目 建売住宅 1号棟
-
交通
駅:飯山線 十日町駅から徒歩19分、バス:十日町車庫前から徒歩7分
-
所在地
新潟県十日町市西本町2丁目9番32
物件へのルート表示
-
物件種別
新築一戸建て
-
構造
木造
-
階建
地上2階建
-
建ぺい率/容積率
60%/150%
-
建物面積
93.36㎡
/28.24坪
-
土地面積
170㎡
/51.42坪
-
築年月
2026年1月完成予定
-
入居時期
相談
-
用途地域
第1種中高層住居専用地域
-
地目
田
-
都市計画
非線引き都市計画区域
-
形状
-
-
道路
北西側:市道 8.0m
-
私道
-
-
その他の制限
-
物件詳細情報
-
所在階/階数
-
-
号室
-
-
販売価格
27,300,000円
-
方位
北西
-
間取り
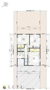
3LDK (洋室:7、6、5.2)、LDK17、建築確認番号:NK第25長00382号、物干しスペースあり
-
専有面積
-
-
バルコニー面積
-
-
その他面積
-
-
駐車場
-
-
管理費
-
-
修繕積立金
-
-
現況
指定なし
-
仲介手数料
なし
-
利用制限
-
-
学校区
西小学校(377m)・南中学校(2,039m)
-
設備
整形地、前面道路6m以上、日当り良好、閑静な住宅街、スーパー近く、BELS/省エネ基準適合認定建物、フラット35S適合、LDK15畳以上、全室フローリング、駐車場2台以上、TVインターホン、複層ガラス、ディンプルキー、システムキッチン、IHクッキングヒーター、浄水器、3口コンロ、追いだき機能付き、バス1坪以上、温水洗浄便座、シャワー付き洗面台、エアコン、24時間換気システム、オール電化、省エネ給湯、高気密高断熱住宅、上水道、下水道、電気、ウォークインクローゼット、全居室収納あり、床下収納、照明器具付き
-
取引態様
売主
-
情報登録日
2025/12/06
-
次回更新予定日
2025/12/30
-
取引条件有効期限
2026/02/01
備考
・22条指定区域
※物件掲載内容と現況に相違がある場合は現況を優先と致します。
詳細はお気軽にお問い合わせください。
担当:高橋
携帯:080-1223-9349
取扱い会社
有限会社 一代工務店